Der Gartenpavillon mit Flachdach

Das Flachdach ist ein beliebtes Stil-Element moderner Architektur, das mittlerweile auch bei Gartenhäusern und Gartenpavillons immer häufiger gewünscht wird. Ein Gartenpavillon mit Flachdach fügt sich harmonisch in fast jede Umgebung ein, ist leicht aufzubauen und kann mit schützenden Wandelementen ausgebaut werden. Wir zeigen verschiedene Pavillon-Typen, ihre Varianten und praktische Ausbaumodule.
Der Gartenpavillon mit Flachdach: Selber bauen (DIY) oder einen Bausatz wählen?
Klassische Gartenpavillons sind oft vieleckig und tragen entsprechend komplexe, mehreckige Dächer mit steilem Gefälle. Dagegen wirkt ein Gartenpavillon mit Flachdach recht simpel und man könnte denken, es sei ein Leichtes, ein gutes Flachdach aus Baumarktmaterialien „mal eben so“ im DIY zu erbauen. Vier Pfosten, ein Flachdach drauf – wo ist das Problem?
Liest man sich dann durch die im Internet kursierenden Bauanleitungen, wird schnell klar, dass es ganz so einfach doch nicht ist. Viele Details müssen berücksichtigt werden wie zum Beispiel eine minimale Dachneigung, damit das Wasser gut abfließen kann. Die erwartbare mechanische Last (Blätter, Schnee…) muss zum Dachmaterial passen, Stützbalken zwischen Pfosten und Dach wollen exakt auf Gehrung gesägt werden. Zu alledem braucht es viele Werkzeuge, die man nicht immer alle im Fundus hat. Kurz gesagt: Ein Pavillon-Bausatz mit Flachdach, der bereits alle Teile passend vorgefertigt mitbringt, erleichtert den Aufbau wesentlich und kann auch von allen gemeistert werden, die ansonsten dem Thema „Bauen mit Holz“ eher ferne stehen.
Im Folgenden stellen wir einige Pavillons vor. Zum einen sind es Flachdach-Pavillons, die sich – ausgehend von einer Schlichtversion – mittels verschiedener Module ausbauen lassen, zum anderen solche Pavillons, die im Standard-Lieferumfang Wand-Module und Balustraden bereits mitbringen.
Der Gartenpavillon Lucy von Palmako
Hochwertiges nordisches Fichtenholz und ein breites Sortiment: Das ist das Erfolgsrezept von Palmako. Der in Estland ansässige Hersteller, hat neben vielerlei Gartenhäusern auch einen hübschen Pavillon mit Flachdach im Programm: den Gartenpavillon Lucy.
Der Pavillon hat ein Massivholzdach aus Nut- und Federbrettern in 19 mm Stärke, das von einer breiten, modernen Frontblende umlaufen wird. Getragen wird das 15,1 m² große Flachdach, das eine minimale Neigung von 1,3 Grad aufweist, von vier verstärkten Leimholzpfosten (12 x 12 cm). Aufgrund des Dachüberstands von 20 cm auf allen Seiten ergibt sich zwischen den Pfosten eine Grundfläche von 12,2 m² – viel Platz für einen wohnlichen Rückzugsort, geschützt vor Sonne und Regen.
Lucy ist ein Pavillon in praktischer Modulbauweise und wird in natur (unbehandelt) geliefert. Dacheindeckung und Wandelemente gehören nicht zum Lieferumfang, können jedoch als Zubehör erworben werden. Zur Wahl stehen verschiedene Wandelemente, ganzverglast oder mit kleinem Fensterelement:
Mittels der Wandelemente lässt sich der in der Grundform eher schlichte Pavillon auf verschiedene Weise ausbauen. Für eine Rückwand oder Seitenwand können die Module nach Belieben kombiniert und platziert werden. Hier einige Beispiele möglicher Varianten:
Je nachdem, welche Wandelemente man kombiniert, entsteht ein Pavillon mit ganz unterschiedlichem „Charakter“. Von voller Transparenz durch ausschließlich bodentief verglaste Wandelemente bis hin zu einer sehr geschlossen wirkenden Variante mit umlaufenden Oberlichtern. Je nach Standort und persönlicher Vorliebe passt sich der Pavillon Lucy so den jeweiligen Erfordernissen an. KSK-Dachbahnen, EPDM-Dachfolie und passende Regenrinnen-Sets aus Metall oder Kunststoff ergänzen das erhältliche Zubehör.
Der Flachdach-Pavillon von Karibu
Auch der bekannte Hersteller Karibu, dessen Gartenhäuser und Pavillons wegen ihrer nachhaltigen, ökologischen und hochwertigen Bauweise beliebt sind, hat mehrere Flachdach-Pavillons in Modul-Bauweise im Programm. Das Grundmodell besteht – ähnlich Lucy – aus vier Tragepfosten und einem breit verblendeten Flachdach. Es steht in drei Größen zur Verfügung, nämlich 244 x 244 cm (Karibu Flachdach 1), 300 x 300 cm (Karibu Flachdach 2) und 360 x 360 cm (Karibu Flachdach 3).
Das Dach des Karibu-Flachdach-Pavillons ist 19 mm Massivholzdach im Nut und Feder-Stecksystem und wird inklusive Dachpappe geliefert. Es ruht auf 9 x 9 cm dicken Pfosten. Die im Lieferzustand leicht grünliche Färbung des Pavillon-Holzes rührt von der Kesseldruck-Imprägnierung her, ein Holzschutz, der gegen holzzerstörende oder holzverfärbende Organismen schützt.
Das Karibu-Flachdach kann mit geschlossenen und teilverglasten (Kunstglas) Wandelementen zum Pavillon mit schützender Rück- und Seitenwand ausgebaut werden.
Auch hier benötigt man jeweils drei Wandelemente, um eine Seite zu schließen. EPDM-Dachfolie und ein Fallrohrset zur Entwässerung des Dachs sind ebenfalls als Zubehör erhältlich.
Der Gartenpavillon Toulouse
Der letzte in der Reihe der Flachdach-Pavillons in Modulbauweise ist der Gartenpavillon Toulouse mit Flachdach. Hier eine Version mit Rückwand und Seitenbalustrade:
Der hübsche, moderne Pavillon, dessen umlaufende Dachblende mit Aluminiumschienen verstärkt ist, steht auf 12 x 12 cm dicken Holzpfosten auf einem quadratischen Grundriss von 302 x 302 cm. In der Grundversion ist auch Toulouse eine schlichte, jedoch hochwertig ausgeführte Überdachung – hier ein Blick auf die Maße:
Für den optionalen Ausbau stehen vier verschiedene Module zur Verfügung. Eine geschlossene Wand, eine Wand mit Lichtband aus Polykarbonatplatte, ein halbhohes Brüstungselement und ein WPC-Fußboden:
„WPC“ steht für Wood-Plastics-Composites, zu deutsch „Holz-Kunststoff-Verbundwerkstoffe“. Das Material besteht zu aus 55% Holz, zu 35% aus Kunststoff und zu 10% aus weiteren Zusatzstoffen. WPC ist damit widerstandsfähiger als vergleichbare Massivholzdielen, was bei einem offenen Pavillon sehr vorteilhaft ist.
Neben der freien Wahl zwischen verschiedenen Wand-Modulen und einem starken Fußboden kann man den Gartenpavillon Toulouse auch bereits farbbehandelt bestellen. Da der Anstrich eines Pavillons oft die aufwändigste Arbeit beim Aufbau darstellt, ist dies eine äußerst bequeme Lösung für alle, die wenig Zeit und Lust haben, selbst den Pinsel in die Hand zu nehmen. Die Farbtöne Nussbaum, Mahagoni, Eiche hell, Grau oder Weiß stehen zur Wahl:
Die optionale Farbbehandlung blättert nicht ab, bietet Schutz vor Bläuebefall und UV-Bestrahlung, vermindert das Quell- und Schwindverhalten des Holzes und lässt sogar die Holzstruktur noch durchscheinen, wie auf dem Foto erkennbar. Alles in allem: eine Investition, die sich lohnt!
Der Flachdach-Pavillon Marseille
Neben den Pavillons in Modulbauweise gibt es natürlich auch solche, die bereits „fertig“ sind, bzw. schon alles mitbringen (oder weglassen), was ihre jeweilige Form ausmacht. Der Flachdach-Pavillon Marseille ist ein solches Modell. Wände gibt es für diesen Pavillon nicht, doch kann man einen schicken WPC-Fußboden mitbestellen.
Eine Besonderheit unterscheidet „Marseille“ von ähnlichen Pavillons: Auf den vier starken, 12 x 12 cm dicken Pfosten ruht ein interessantes Flachdach, das mit seiner transparenten Dacheindeckung aus Polycarbonat-Doppelstegplatten viel Licht von oben einfallen lässt – aber dank der Abtönung im Farbton Bronze eben auch nicht zu viel Licht!
Der Grundriss des Pavillons Marseille von 327 x 350 cm (Tiefe x Breite) ergibt eine überdachte Fläche von 11,45 m². Zwischen den Pfosten bleiben davon sieben Quadratmeter Stellfläche, immer noch genug Platz für Loungemöbel, wie sie auch im Garten immer beliebter werden. Standardmäßig wird der Pavillon unbehandelt geliefert, doch hat man auch hier die Möglichkeit, die Farbbehandlung in Nussbaum, Mahagoni, Eiche hell, Grau oder Weiß gleich mitzubestellen.
Ein genauerer Blick auf die Dachkonstruktion (im Foto links) zeigt deren Komplexität – das kriegt man im Selberbau wirklich nicht so leicht hin! Alles in allem ist „Marseille“ ein hochwertiger Pavillon mit wunderschönem Flachdach, der zum Verweilen einlädt, Schutz vor feuchter Witterung bietet und dennoch „von Licht durchflutet“ wird.
Die Gartenlaube Sophia-44 mit Flachdach
Im Vergleich mit „Marseille“ schützend umbaut zeigt sich die Gartenlaube Sophia-44. Eine geschlossene Rückwand und zu zwei Dritteln geschlossene Seitenwände werden durch eine umlaufende halbhohe Balustrade ergänzt, die lediglich auf der Vorderseite einen Durchgang offen lässt.
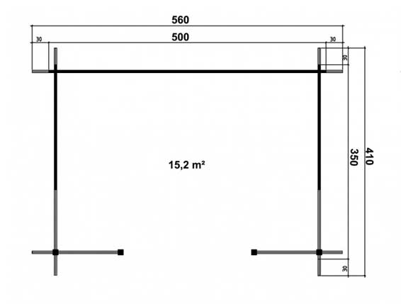
Zusammen mit dem Dachüberstand von 30 cm ergibt sich ein Außenmaß von stolzen 560 x 410 cm und schützt so die Wände gut vor Regen und Schnee. Davon bleiben 480 x 330 cm (Sockelmaß), also sehr großzügige 15,2 Quadratmeter Nutzfläche. 44 mm Wandstärke und die bei Gartenhäusern verbreitete Blockbohlen-Bauweise garantieren Stabilität. Hier ein Blick auf den Grundriss:
Zum Lieferumfang gehören bereits kesseldruckimprägnierte Terrassenbretter, ein schöner Holzfußboden für den Pavillon. Optional kann man eine komplette werksseitige Imprägnierung in den Farben Pinie, Nussbaum oder Salzgrün dazu bestellen. Für das Massivholzdach aus Nut- und Federbrettern sind KSK-Dachbahnen und EPDM-Dachfolie als Zubehör erhältlich.
Wir hoffen, Sie mit den sehr unterschiedlichen Varianten unserer Pavillons mit Flachdach inspiriert zu haben. Wer sich mehr umbauten Raum und zusätzlich zu einer großen Überdachung auch geschlossene Räume wünscht, findet unter den Gartenhäusern mit Anbau geeignete Modelle, die keine Wünsche offen lassen.















Die Kommentare sind geschlossen.