Das Gartenhaus mit Schiebetür

Ein Gartenhaus mit Schiebetür ist eine feine Sache, denn verglichen mit einer normalen Flügeltür braucht die Schiebetür keinen Platz in Durchgangsrichtung – weder innen noch außen. Lesen Sie mehr über die Vorteile einer solchen Türbauweise und lassen Sie sich von den attraktiven Beispielen kleiner und großer Gartenhäuser inspirieren!
Wissenswertes rund um die Schiebetür

Historisch betrachtet ist die Schiebetür seit dem Altertum bekannt und in Gebrauch. In der traditionellen japanischen Wohnarchitektur spielte sie eine tragende Rolle und sogar in Pompeji (1. Jahrhundert) fand man Führungsrillen für Schiebetüren.
Heutzutage werden Schiebetüren für ganz unterschiedliche Zwecke genutzt. Sie dienen als Raumteiler, um z. B. Konferenzräume bei Bedarf zu vergrößern. Im Bereich „barrierefreies Wohnen“ erleichtern sie Personen den Alltag, die eine Flügeltür nicht eigenständig öffnen könnten. Auch eignen sie sich hervorragend für kleine Räume, werden also gerne zur Abtrennung von Nischen, für begehbare Kleiderschränke und Abstellkammern genutzt. Und natürlich für Gartenhäuser, vom kleinen Gerätehaus bis zum großen 3-Raum-Modell.
Denn auch am Gartenhaus hat eine Schiebetür bedenkenswerte Vorteile: So kann man etwa eine dem Gartenhaus vorgelagerte Terrasse besser nutzen, da man nicht darauf achten muss, den Schwenkbereich der Tür freizuhalten. Rechts und links des Durchgangs können Kübelpflanzen gestellt werden, denn auch geöffnet braucht die Schiebetür nur wenige Zentimeter Platz. Zudem sehen Schiebetüren richtig gut aus und passen besonders gut zu moderner Gartenhaus-Architektur.
Kleine Gerätehäuser und Gartenhäuser mit Schiebetür
Klein, aber oho ist das Gartenhaus Ibiza 2 mit 6,9 Quadratmetern Nutzfläche bei einem Sockelmaß von 3 x 2,40 Metern. Es hat allerdings ein Fenster in der Seitenwand und die bodentiefe Verglasung der Schiebetür im Sprossen-Design sorgt ebenfalls für mehr Belichtung. Will man zum Beispiel Kräuter trocknen oder kleine handwerkliche Arbeiten verrichten, so gewinnt man bei Ibiza 2 leicht den Überblick:
Mittlere und große Gartenhäuser mit Schiebetür
Im Sektor der mittelgroßen Gartenhäuser mit Schiebetüren stehen auch Varianten mit klassischem Satteldach zur Wahl. Etwa das Gartenhaus Neva-44 ISO mit 12,88 m² Nutzfläche in einem einzigen großen, quadratischen Raum (368 x 368 cm). Die sehr große isolierverglaste Schiebetür (340 x 193 cm) nimmt hier die Vorderseite in voller Breite ein, was dem Raum große Offenheit und Transparenz verleiht:
Mit zunehmender Größe kommen wir wieder beim modernen Flachdach-Design an, das dem Gartenhaus Java LM ISO einen Bauhaus-affinen Charakter verleiht:
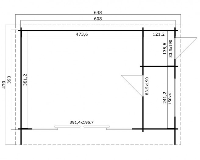
Stolze 22,6 m² Nutzfläche (608 x 390 cm) verteilen sich auf einen großen Wohnraum, ein kleines Nebenzimmer und einen von außen zugänglichen Geräteraum:
Durch den 3-Raum-Grundriss bedingt ist die große Schiebetür nicht mittig in der Vorderseite des rechteckigen Gartenhauses platziert, sondern in einer attraktiven Asymmetrie näher zum linken Rand. Das Querformat des seitlichen Fensters korrespondiert optisch mit den bodentiefen Fenster-Elementen der Schiebetür. Dass der eigentliche Korpus des Gartenhauses durch das kurze Vordach, die vorgezogenen Seitenwände und mitgeführten Fundamenthölzer quasi „eingerahmt“ wird, ergibt bei aller Modernität eine angenehme Ausstrahlung von Schutz und Geborgenheit. Isolierverglasung an Türen und Fenstern und 44mm Wandstärke sorgen dafür, dass diese Werte nicht bloße „Anmutung“ bleiben.
Moderne Cubus-Häuser mit Schiebetüren:
Cubus-Gartenhäuser sind etwas Besonderes: hochwertig in Design und Verarbeitung, flexibel im Einsatz und einfach im Aufbau. Das mit ca. 13,76 m² Nutzfläche schon mittelgroße Design Gartenhaus Cubus-Capri 40 ähnelt durch den gegenüber den Außenmaßen „zurück gesetzten“ Korpus dem Modell Java LM ISO, jedoch zieht sich hier der Dachüberstand von 70cm und die kurze Terrasse über ganze zwei Seiten. Mit 446 x 446 cm und 40mm Wandstärke ist das Gartenhaus ein stabiler quadratischer Kubus, dessen großer Innenraum durch die große isolierverglaste Doppel-Schiebetür und das bodentiefe, ebenfalls iso-verglaste 3er-Fensterelement sehr gut belichtet wird.
Der Innenraum (380 x 380) bietet Platz genug für eine gemütliche Einrichtung. Der Massivholzfußboden (Nut- und Federbretter) und die kesseldruckimprägnierten Terrassenbretter gehören zum Lieferumfang. Cubus-Capri40 passt besonders gut in Gärten mit klaren Strukturen, kann aber auch in einer „grünen Wildnis“ einen spannenden Kontrapunkt setzen.
Fast doppelt soviel Platz bietet das stilistisch ähnliche Design Gartenhaus Cubus-Plus 40. Seine Nutzfläche verteilt sich auf den ca. 13,76 m² großen Hauptraum und 11,4m² Terrasse, die vom schicken Flachdach mit überdacht wird.
Die große isolierverglaste Schiebetür (276 x 195 cm) verbindet den Innenraum mit dem Außenbereich, sodass bei weit offener Tür eine große Wohnlandschaft mit vielen Gestaltungsmöglichkeiten zur Verfügung steht:
Das dreiteilige isolierverglaste Fensterelement sorgt für die zusätzliche Belichtung von der Seite.
Eine weitere Variante des modernen Cubus-Stil ist das Design Gartenhaus Cubus-Saturn 40. Der umschlossene Raum ist mit ca. 13,8 m² fast identisch groß wie der des Modells Cubus-Plus40, jedoch ist der Terrassenteil mit 6,5 Quadratmetern deutlich kleiner. Das Vordach erweitert das Flachdach hier um ca. 1,80 Meter. Neben der iso-verglasten Doppeltür sorgen zwei hochwertige Oberlichtfenster, die man auch öffnen kann, für eine gute Belichtung.
Für alle vorgestellten Gartenhäuser vom Pultdach-Gerätehaus bis zur großen „Gartenvilla mit Terrasse“ gilt: Wer die Bequemlichkeit einer Schiebetür einmal erfahren hat, wird sie nicht mehr missen wollen!
Eine Sonderform der Schiebetür bietet das Gartenhaus mit Falttür, dem wir einen extra Artikel gewidmet haben.
***
Foto japan. Schiebetür: Mytho – Fotolia.com








Die Kommentare sind geschlossen.