Zum Hauptinhalt springen Zur Suche springen Zur Hauptnavigation springen
Gartenhaus.com wünscht dir eine schöne Adventszeit.
Beratung
Sales Contact Image
Verkaufsberatung: 040 76 122 122
Rückrufservice
Tage
Weihnachtsgeschenk sichern: Gratiszubehör - automatisch im Warenkorb bei vielen Artikeln

4.239,00 €

-31%
UVP 6.099,00 €
-31%

inkl. MwSt. | Versandkostenfrei

Gartenhaus Lausitz-40 ISO mit Schiebetür

Die unten ausgewählten Zubehörartikel werden mit in den Warenkorb gelegt.
Purchase Advice Image
Persönliche Produkt- & Kaufberatung gewünscht Tel: 040 76 122 122
Fragen zum Produkt und extra Deal sichern?
WhatsApp-Beratung und Extra-Deal sichern!
Whatsapp Beratung
Lieferzeit ca. 2-3 Wochen
Versandkostenfrei
Skonto Icon
-3% Skonto bei Vorkasse
Produktvarianten
Schutz-Imprägnierung wählen:
Mit Imprägnierung (Pinie)
Lieferung zum Wunschzeitraum
Passendes Zubehör zu diesem Produkt
Produktbeschreibung

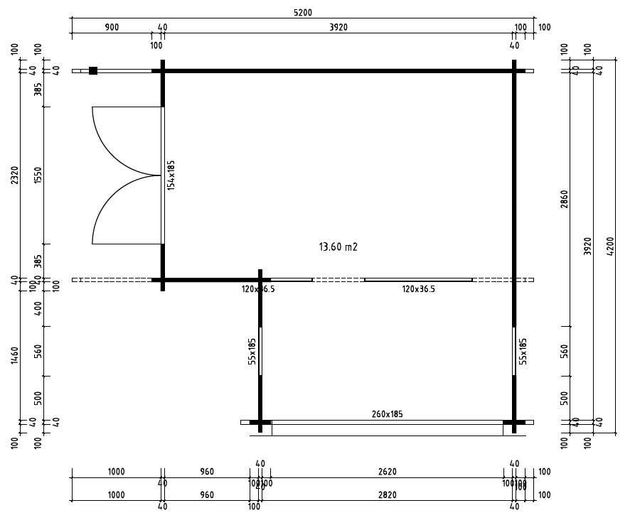
Das Gartenhaus Lausitz gehört zu unseren beliebtesten Gartenhäusern. Dessen Besonderheit ist das Doppel-Pultdach, das dem Haus eine moderne Form mit klarer Führung gibt. Im Innenraum entsteht so eine angenehm hohe Decke und die Oberlicht-Fenster lassen eine Extraportion Licht ins Gartenhaus.

Artikeldetails zum Gartenhaus Lausitz-40:

  • Außenmaß: 520 x 420 cm
  • Sockelmaß: 500 x 400 cm
  • Seitenwandhöhe: ca. 217 cm
  • Gesamthöhe: ca. 314 cm
  • Nutzfläche: ca. 13,6 m²
  • Rauminhalt: ca. 50,5 m³
  • 1x Schiebetür: ca. 260 x 185 cm
  • 1x Doppeltür: ca. 154 x 185 cm
  • 2x Oberlicht-Fenster: ca. 120 x 36 cm
  • 2x Fensterelement: ca. 55 x 185 cm
  • Wandstärke: 40 mm

Im Lieferumfang des Gartenhauses enthalten:

  • Massivholzdach aus Nut- und Federbrettern (vormontiert)
  • alle Blockbohlen mit 4-fach Eckausfräsung (wind- u. regendicht)
  • Verglasung bei Türen & Fenstern aus Isoglas
  • hochwertige Türen mit Leimholzrahmen
  • hochwertige Türschwelle aus Aluminium
  • hochwertige Fenster mit Isolierverglasung
  • Sprossenrahmen für Fenster & Türen
  • Lüftungsgitter für die bessere Luftzirkulation im Gartenhaus
  • Schloss, Drückergarnitur & Montagematerial
  • Sturmleisten für Windsicherung
  • Lieferung ohne Dachpappe
  • Sichtschutzgitter
  • Lieferung in natur (ohne Farbbehandlung)
  • Lieferung ohne Holzfußboden (als Zubehör erhältlich)
  • Wenn bei Fenstern oder Türen Sprossen im Lieferumfang sind, so werden diese separat mitgeliefert. 
  • Sie haben also immer die Wahl, ob Sie das Haus in einer klassischen Optik mit Sprossen/Holzkreuzen, oder etwas moderner ohne haben möchten.

Achtung: Fußboden und die im Fußboden-Paket enthaltenen Fundamenthölzer sind nicht im Lieferumfang enthalten!

Passendes optionales Zubehör:

  • Kunststoff Dachrinne hinten: 303B und vorne: 302B
  • Metall Dachrinne hinten: 306KB und vorne: 304KB

Wir weisen darauf hin, dass das Produkt ständig weiterentwickelt wird und damit in Details von dem dargestellten Foto abweichen kann. Insbesondere Kundenbilder stellen teils von Kunden modifizierte Modelle dar.

Entdecken Sie weitere Häuser der Gartenhaus-Serie Lausitz

Sollten Sie nicht bereits oberhalb, unter „Beliebte Dienstleistungen“ unseren Montageservice finden, kontaktieren Sie uns gerne über dieses Anfrageformular. Wir prüfen dann die Möglichkeiten einer Montage.

Zubehör & Services
4 Zubehörartikel sind gerade ausgewählt (inkl. unseren Empfehlungen). Die passenden Mengen sind voreingestellt.

Das benötigst du für den Aufbau

Mehr Details anzeigen

Sparset Universal Holzfußboden-Set 15m2 BD

Universal Holzfußboden-Set mit bis zu 20% Ersparnis gegenüber dem Einzelkauf!

Passend zum Haus – Mit diesem Set hast du mit einem Klick die passende Anzahl Holzfußboden Pakete für dein Wunschprodukt. Optional auch mit passendem Boden-Dämmung Paket erhältlich.

Inhalt des Sets:

  • Nut- und Federbretter mit 18 mm Stärke, naturbelassen 
  • passende Anzahl Fußleisten, mit oder ohne werkseitiger Imprägnierung
  • kesseldruckimprägnierte Fundamenthölzer
  • die Imprägnierung kann ggf. farblich vom Haus abweichen
  • Material: nordische Fichte
  • Optional mit passendem Boden-Dämmung Paket, bestehend aus:
    • Styrodur-Platten (1250 x 600 x 30 mm)
    • Dampfbremsfolie
    • Multifunktionales-Tape

Bitte beachten Sie, dass der Fußboden und ggf. Material aus dem Dämmung-Paket individuell angepasst werden muss. Eine ausführliche Montageanleitung liegt dem Set bei.

Dieses Set ist für Häuser mit einer Grundfläche von 12,01 - 15 m² berechnet. Im Zweifelsfall empfehlen wir, die Artikel einzeln zu kaufen.

€ 0,00

Mehr Details anzeigen

Sparset Universal Holzfußboden-Set 15m2

Universal Holzfußboden-Set mit bis zu 20% Ersparnis gegenüber dem Einzelkauf!

Passend zum Haus – Mit diesem Set hast du mit einem Klick die passende Anzahl Holzfußboden Pakete für dein Wunschprodukt.

Inhalt des Sets:

  • Nut- und Federbretter mit 18 mm Stärke, naturbelassen 
  • passende Anzahl Fußleisten, mit oder ohne werkseitiger Imprägnierung
  • kesseldruckimprägnierte Fundamenthölzer
  • die Imprägnierung kann ggf. farblich vom Haus abweichen
  • Material: nordische Fichte

Bitte beachte, dass der Fußboden individuell angepasst werden muss. Eine ausführliche Montageanleitung liegt dem Set bei.

Dieses Set ist für Häuser mit einer Grundfläche von 12,01 - 15 m² berechnet. Im Zweifelsfall empfehlen wir, die Artikel einzeln zu kaufen.

€ 0,00

28 mm Holzfußboden Universal imprägniert 3 m²

Mehr Details anzeigen

28 mm Holzfußboden Universal imprägniert 3 m²

Die benötigte Anzahl der Fußböden wurde von uns vorher schon für jedes Gartenhaus berechnet und in das vorgegebene Bestellfeld eingetragen. Du musst also nur noch einen Haken setzen.

Bitte beachte, dass der Fußboden individuell angepasst werden muss. Eine ausführliche Montageanleitung liegt dem Set bei.

Im Lieferumfang enthalten:

  • 28 mm Nut- und Federbretter imprägniert
  • Fußleisten imprägniert
  • kesseldruckimprägnierte Fundamenthölzer
  • die Imprägnierung kann ggf. farblich vom Haus abweichen
  • Material: nordische Fichte
  • Montagematerial

€ 399,00

18 mm Holzfußboden Universal Naturbelassen 3 m²

Mehr Details anzeigen

18 mm Holzfußboden Universal Naturbelassen 3 m²

Die benötigte Anzahl der Fußböden wurde von uns vorher schon für jedes Gartenhaus berechnet und in das vorgegebene Bestellfeld eingetragen. Du musst also nur noch einen Haken setzen.

Bitte beachte, dass der Fußboden individuell angepasst werden muss. Eine ausführliche Montageanleitung liegt dem Set bei.

Im Lieferumfang enthalten:

  • 18 mm Nut- und Federbretter, natur unbehandelt, ohne Imprägnierung und Farbbehandlung
  • Fußleisten, natur unbehandelt, ohne Imprägnierung und Farbbehandlung
  • kesseldruckimprägnierte Fundamenthölzer
  • Material: nordische Fichte
  • Montagematerial

 

€ 279,00

Sparset Montagezubehör und Befestigung S

Mehr Details anzeigen

Sparset Montagezubehör und Befestigung S

Feuchtigkeitssperre, Sturmwinkel, Windverankerung                   

Basic Zubehör Set mit bis zu 20% Ersparnis gegenüber dem Einzelkauf!

Das Minimal Set für den sicheren Aufbau und Verankerung des Gartenhauses.

Wir empfehlen dieses Set dringend für jedes Gartenhaus. Damit ist dein Gartenhaus vor Feuchtigkeit und Sturm geschützt. Mit dem auf dein Haus abgestimmten Basis-Set hast du garantiert viele Jahre Freude an deinem Gartenhaus!

Dieses Set ist für Gartenhäuser mit einer Grundfläche von 0 - 20 m² berechnet. Mit diesem Set hast du mit einem Klick alles, was du für den sicheren Aufbau und Verankerung deines Gartenhauses benötigen – und das in ausreichender Menge.

Bestehend aus:

  • Feuchtigkeitssperre (Set: ca. 100 Stk.)
  • Sturmwinkel (Set: 4 Stück)                                             
  • 1x Windverankerungs-Set (Set für 2 Seiten)

Beschreibung Feuchtigkkeitssperre:

Unterlage Pads aus Spezial-Gummigranulat für Lager- und Fundamenthölzer 

Gummigranulat Pads werden beim Aufbau der Unterkonstruktion eines Gartenhauses als Feuchtigkeitssperre und zum Ausgleich von Unebenheiten benutzt. Sie werden unterhalb der Unterkonstruktion angebracht bzw. auf der Fundamentplatte verlegt. Die Pads sollten bestenfalls alle 30-40 cm verlegt werden. Da die Pads aus einem spezial Gummigranulat hergestellt werden, können sie weder Wasser aufsaugen, noch gammeln. Das Gummi schützt die Unterkonstruktion des Gartenhauses gegen aufsteigende Nässe und vermeidet somit die Verwitterung und Fäule der Unterkonstruktion. Gleichzeitig ist durch den erhöhten Aufbau eine Drainage gewährleitet und das Wasser kann problemlos abfließen und eine perfekte Luftzirkulation ist unter den Fundamenthölzern gewährleistet.

Vorteile unserer Spezial Gummigranulat Pads

  • Keine scharfen Kanten
  • Schutz gegen aufsteigende Nässe
  • Dampfdiffusionsfähig
  • Trittschalldämmend
  • Gleicht Unebenheiten in der Bodenplatte aus
  • Rutschfest
  • Unverrottbar da aus 100% Gummi hergestellt
  • Formbeständig
  • Keine Staunässe unter den Hölzern
  • Dient als Drainage, Wasser kann in alle Richtungen abfließen

Abmessungen der Pads: 

60 x 60 x 6 mm  (Länge x Breite x Stärke)

Inhalt pro Verpackung

Eine Verpackungseinheit besteht aus ca. 100 Stück Spezial Gummigranulat Pads

Tipps und Tricks zur fachgerechten Verlegung der Gummigranulat Pads sind in diesem Infovideo zu finden :

 

Beschreibung Sturmwinkel:

Spezial Sturmwinkel-Set ( 4 Stück) zur Befestigung des Gartenhauses am Fundament

Wir empfehlen dein Gartenhaus in besonders windanfälligen Gebieten mit unseren Spezial Sturm-Winkeln an der Fundament- bzw. Bodenplatte zu befestigen. Die Winkel können wahlweise Innen oder Außen in mindestens allen vier Ecken Ihren Gartenhauses an der Bodenplatte befestigt werden. Der Spezial Winkel hat einen extra langen Schenkel und verbindet somit die Fundament- bzw. Bodenplatte mit dem Fundamentholz und den ersten beiden Blockbohlenreihen. Bei größeren Garten bzw. Blockbohlenhäusern sollte zusätzlich zu den vier Ecken noch mittig ein Winkel in jeder Wand gesetzt werden. Wir liefern die Sturmwinkel ohne Befestigungsmaterial (Schrauben & Dübel). 

Verpackungseinheit pro Set: 

Ein Set besteht aus 4 Spezial Sturmwinkeln (ohne Befestigungsmaterial)

Maße: ca. 28,5 x 9 x 6,5 cm; Materialstärke: ca. 0,5 cm

Für eine 100% Sturmsicherung empfehlen wir eine Kombination aus diesem 
Set und dem Windverankerungs-Set für die einzelnen Blockbohlen !!

Tipps und Tricks zur fachgerechten Verlegung der Sturmwinkel bzw. des Windverankerungs-Sets sind in diesem Infovideo zu finden :

 

Beschreibung Windverankerungs-Set für Blockbohlenhäuser:

Wir empfehlen in besonders starken Windregionen dein Gartenhaus durch ein zusätzliches Windverankerungs-Set zu sichern. Das Set besteht aus zwei stabilen Gewindestangen, welche mit Hilfe von speziellen Metallwinkeln und Spannungsfedern in zwei gegenüberliegenden Ecken von außen oder innen in Ihrem Gartenhaus montiert werden. Die Gewindestangen verbinden die unterste und oberste Blockbohle und verhindern ein Auseinandergehen der einzelen Blockbohlen und halten diese bei Sturm zusammen. Da man die einzelnen Blockbohlen nicht unter-
einander verschrauben sollte, ist die Sicherung mit diesem Set die beste Möglichkeit die Bohlen untereinander zu verbinden. 

Im Set enhalten sind: 

4x Gewindestangen M6 x 1000mm inkl. Montagewinkel, Spannungsfedern und Montagematerial mit Schrauben

Das Montagematerial (Schrauben) ist für Blockbohlenhäuser von einer Wandstärke vom 19-45 mm
geeignet. Wenn du das Set bei starken Blockbohlen (über 45 mm) verwendest, müssen die 
Schrauben bauseits gegen längere Schrauben ausgetauscht werden !!

Für eine 100% Sturmsicherung empfehlen wir eine Kombination aus diesem Set und dem
Sturmwinkel Set für eine Befestigung auf der Fundamentplatte. 

€ 119,00

Sparset Schindel Dacheindeckung - 24 m²

Mehr Details anzeigen

Sparset Schindel Dacheindeckung - 24 m²

Dein Rundum-sorglos-Paket fürs regensichere Dach – das Schindel-Komplettset spart dir bis zu 20 % gegenüber dem Einzelkauf!

 

Lieferumfang für Dachflächen bis 24 m²:

· Premium Rechteckschindeln schwarz (9 Pakete je 3 m²)

· Unterdeckbahn Ondutiss Strong Air 120 (3 Rollen)

· Dachpappstifte (9 Päckchen)

· Bitumenkleber (3 Tuben)

 

Premium Rechteckschindeln schwarz:

Unsere Premium Rechteck-Bitumen-Dachschindeln überzeugen durch eine hochwertige Trägereinlage aus robustem Glasvlies und ein edles, farbintensives Mineralgranulat auf der Oberseite. Diese Kombination sorgt nicht nur für ein elegantes Erscheinungsbild, sondern auch für maximalen Schutz: Die Schindeln verhindern zuverlässig das Eindringen von Wasser, bieten eine windfeste und UV-beständige Oberfläche und verleihen deinem Dach eine edle, pflegeleichte Optik – langanhaltend schön und zuverlässig wetterbeständig.

 

Unterdeckbahn Ondutiss Strong Air 120:

Die hochwertige, dreilagige Unterspann- und Schalungsbahn aus Polypropylen bietet zuverlässigen Schutz vor Wind und Feuchtigkeit und unterstützt eine effiziente Wärmedämmung.

· Abmessung: 10 x 1 m

 

Dachpappstifte:

Die Dachpappstifte dienen zur robusten und wetterfesten Befestigung der Schindeln und Unterdeckbahn. Ihre verzinkte Oberfläche sorgt für einen zuverlässigen Schutz vor Korrosion.

· Abmessung: 2,5 x L 15 mm

· Ø Kopf: 8 mm

· Verzinkt

· Menge: ca. 200 g = ca. 133 Stück

 

Bitumenkleber:

Mit diesem hochwertigen Bitumenkleber kannst du windgefährdete Schindeln zusätzlich zu den Dachpappstiften fixieren und damit für die ideale Haltbarkeit deines Daches sorgen – perfekt auch für schnelle, zuverlässige Reparaturen geeignet. Der Kleber ist sofort gebrauchsfertig – kein Verdünnen, kein Erhitzen, einfach auftragen und befestigen.
Für optimale Haftung: Stelle sicher, dass die Fläche sauber, trocken und frei von Sand, Blättern oder anderen Verschmutzungen ist. Der Untergrund sollte nicht vereist oder mit Reif bedeckt sein.

· Farbe: schwarz

· Inhalt: 310 ml

· Zur Anwendung auf Holz und Bitumen

 

Das Zubehörpaket ist optimal auf die üblichen Bedarfsmengen abgestimmt Je nach Art der Befestigung und Überlappung kann der Materialverbrauch leicht variieren.

€ 469,00

Mehr Details anzeigen

Premium-Lasur-Farben-Set XL

PGH Premium Holzschutzgrund* Imprägnierung, PGH Premium Wetterschutzlasur

Lasur-Farben-Set mit bis zu 15% Ersparnis gegenüber dem Einzelkauf!

Natürlich schön – das Komplettset für lasierten Holzschutz

Dieses Set ist perfekt für alle, die die natürliche Holzmaserung ihres Gartenhauses betonen möchten. Die Lasur dringt tief ins Holz ein, schützt es vor Witterung und lässt gleichzeitig die Struktur des Holzes sichtbar – für ein natürliches, atmungsaktives Finish.

Berechnet für eine Fläche von ca. 51 m² enthält dieses Set alles, was du für den Außenanstrich brauchst – in der passenden Menge und abgestimmt auf die Lasurtechnik.

Bestehend aus:

  • PGH Holzschutzgrund Imprägnierung (3 Gebinde á 2,5 l) zum vorbeugenden Schutz vor Bläue-, Insekten- und Pilzbefall.
  • PGH Wetterschutzlasur (3 Gebinde á 2,5 l) in der Farbe kiefer, kalkweiß, schwedenrot, nussbaum, teak, achatgrau, graphitgrau oder farblos. Bei dieser farblichen Endbehandlung bleibt die Holzmaserung und der natürliche Charme von Holz sichtbar. 

Die GartenHaus Profis empfehlen:

  1. Einmaliger Auftrag mit PGH Holzschutzgrund Imprägnierung, zum vorbeugenden Schutz vor Bläue-, Insekten- und Pilzbefall.
  2. Versiegel von Außen dein Wunschprodukt, mit zwei Anstrichen PGH Wetterschutzlasur in deiner Wunschfarbe und schütze es so lange Zeit wirksam vor Witterungseinflüssen.

Beschreibung PGH Premium Holzschutzgrund* Imprägnierung:

PGH Holzschutzgrund ist eine wasserbasierte, bläueschützende Holzimprägnierung für den Außenbereich.

PGH Holzschutzgrund dient zur vorbeugenden Anwendung und sicheren Schutz gegen Bläuepilze auf Hölzern ohne Erdkontakt im Außenbereich.

Anwendungsgebiete:

Holz im Außenbereich z.B. Holzfassaden, Carports, Fenster und Außentüren, Dachuntersichten.

Eigenschaften:

  • bläueschützende Imprägnierung für außen
  • tiefenwirksam
  • wasserbasiert
  • farblos

Reichweite:

  • 2,5l reichen für ca. 18-21 m² bei einmaligem Anstrich

* Biozidprodukte vorsichtig verwenden. Vor Gebrauch stets Kennzeichnung und Produktinformation lesen.

Beschreibung PGH Premium Wetterschutzlasur:

PGH Wetterschutzlasur ist die seidenglänzende, aromatenfreie Holzlasur für außen.

PGH Wetterschutzlasur ist tropfgehemmt eingestellt und somit ideal für Arbeiten über Kopf geeignet. Sie ist offenporig, feuchtigkeitsregulierend und leicht zu verarbeiten und eignet sich für alle Laub- und Nadelhölzer im Außenbereich, die einen UV- und wetterbeständigen Anstrich erhalten sollen.

Anwendungsgebiete: 

Holz im Außenbereich z.B. Gartenhäuser, Carports, Pergolen, Dachuntersichten oder Saunen

Eigenschaften:

  • lasierender Schutzanstrich für außen
  • UV- und wetterbeständig
  • tropfgehemmt
  • seidenglänzend

Reichweite:

  • 2,5l reichen für ca. 30-37 m² bei einmaligem Anstrich

Achtung: Set enthält Farb-Material zum bauseitigen Selbstanstrich. Farbdarstellung kann je nach Bildschirm variieren und ist somit nicht verbindlich!

Was ist der Unterschied zwischen Lasur und Deckfarbe?

Lasur: Lässt die Holzmaserung durchscheinen, wirkt natürlich und atmungsaktiv. Ideal, wenn du den Charakter des Holzes erhalten möchtest.

Deckfarbe: Übermalt die Holzstruktur komplett, bietet intensive Farbe und stärkeren UV-Schutz. Perfekt für einen modernen, gleichmäßigen Look.

€ 0,00

Spenglerschrauben 4,5x20

Mehr Details anzeigen

Spenglerschrauben 4,5x20

Artikelbeschreibung:

Spenglerschraube mit Dichtscheibe aus V2A, geeignet für z.B.:

  • Firstabdeckung
  • Winkelprofile
  • Traufbleche
  • Ortbleche
  • uvm.

Technische Details:

  • Abmessung: 4,5 mm Durchmesser und 20 mm Länge / Torx
  • Farbe: Anthrazit RAL 7016
  • Inhalt: 20 St.

Bitte ändere die Anzahl der Schrauben auf die benötigte Menge. Wir empfehlen 4 Schrauben je Profil.

€ 29,00

Premium Biberschwanzschindeln schwarz 3m²

Mehr Details anzeigen

Premium Biberschwanzschindeln schwarz 3m²

Hochwertige flexible Biberschwanz-Bitumen Dachschindeln mit Trägereinlage aus Glasvlies und einem speziell eingefärbten Mineralgranulat auf der Oberseite. Das Verlegen von Bitumen-Dachschindeln verhindert das Eindringen von Wasser in die Dachfläche und bildet gleichzeitig eine windfeste und UV-beständige Oberfläche des Gartenhauses.

Diese Dachschindel ist aufgrund seiner besonders starken Glasvlies Einlage und seiner Materialstärke ein absolutes Premium Produkt und nicht mit Dachschindeln aus dem Baumarkt zu vergleichen !

Dachpappnägel gehören nicht zum Lieferumfang und müssen bauseits gestellt werden !!

Packungsinhalt: 3m²

Zur Abdeckung von Firstflächen wird zusätzlich ein Paket Rechteckschindeln benötigt. Sind neben den Firstflächen noch Gratflächen, wie zum Beispiel bei Walmdächern und 5-Eck Häusern vorhanden, empfehlen wir ein weiteres Paket Rechteckschindeln.

Für Firstflächen + 1 Paket
Für Gratflächen + 1 Paket

 Tipps und Tricks zur fachgerechten Verlegung der Dachpappe bzw. der Dachschindeln sind in diesem Infovideo zu finden :
 

€ 59,00

Giebelblech

Mehr Details anzeigen

Giebelblech

 

Giebelblech zur Abdeckung der Giebelbretter.

  • Farbe: Anthrazit
  • Material: Aluminium pulverbeschichtet
  • Stärke: 0,8 mm
  • Maße:
  • Tiefe: 120 mm
  • Höhe: 50 mm
  • Höhe Tropfkante: 15 mm
  • Länge; 2 m

Schrauben sind nicht im Lieferumfang. Passende Spenglerschrauben sind hier.

€ 49,00

Premium Rechteckschindeln rot 3m²

Mehr Details anzeigen

Premium Rechteckschindeln rot 3m²

Hochwertige Premium Rechteck-Bitumen Dachschindeln mit Trägereinlage aus Glasvlies und einem speziell eingefärbten Mineralgranulat auf der Oberseite. Das Verlegen von Bitumen-Dachschindeln verhindert das Eindringen von Wasser in die Dachfläche und bildet gleichzeitig eine windfeste und UV-beständige Oberfläche des Gartenhauses.

Diese Dachschindel ist aufgrund seiner besonders starken Glasvlies Einlage und seiner Materialstärke ein absolutes Premium Produkt und nicht mit Dachschindeln aus dem Baumarkt zu vergleichen !!

 

Dachpappnägel gehören nicht zum Lieferumfang und müssen bauseits gestellt werden !!

 Packungsinhalt: 3m²

 Tipps und Tricks zur fachgerechten Verlegung der Dachpappe bzw. der Dachschindeln sind in diesem Infovideo zu finden :
 

€ 59,00

Mehr Details anzeigen

Fundamentträger Kunststoff

Bitte ändere die Anzahl der Fundamentträger auf die benötigte Menge.
Berechne einfach den Umfang des Garten- oder Gerätehauses und wähle die entsprechende Anzahl der Fundamentträger.

Dieser Fundamentträger aus Kunststoff hat eine praktische Tropfkante, die die erste Wandschicht gegen Feuchtigkeit schützt. 

  • Maße: 35 x 85 x 3000 mm
  • Material: Kunststoff
  • Menge: 1
  • in Kombination mit Fußboden/Fundamenthölzer zu nutzen
  • erhältlich in Standard Ausführung für alle Wandstärken 
  • einfacher Zuschnitt der Fundamentträger, mit jeder handelsüblichen Hand- oder Stichsäge möglich

 

 

€ 0,00

Premium Biberschwanzschindeln grün 3m²

Mehr Details anzeigen

Premium Biberschwanzschindeln grün 3m²

Hochwertige flexible Biberschwanz-Bitumen Dachschindeln mit Trägereinlage aus Glasvlies und einem speziell eingefärbten Mineralgranulat auf der Oberseite. Das Verlegen von Bitumen-Dachschindeln verhindert das Eindringen von Wasser in die Dachfläche und bildet gleichzeitig eine windfeste und UV-beständige Oberfläche des Gartenhauses.

Diese Dachschindel ist aufgrund seiner besonders starken Glasvlies Einlage und seiner Materialstärke ein absolutes Premium Produkt und nicht mit Dachschindeln aus dem Baumarkt zu vergleichen !!

Dachpappnägel gehören nicht zum Lieferumfang und müssen bauseits gestellt werden !!

Zur Abdeckung von Firstflächen wird zusätzlich ein Paket Rechteckschindeln benötigt. Sind neben den Firstflächen noch Gratflächen, wie zum Beispiel bei Walmdächern und 5-Eck Häusern vorhanden, empfehlen wir ein weiteres Paket Rechteckschindeln.

Für Firstflächen + 1 Paket
Für Gratflächen + 1 Paket

 Tipps und Tricks zur fachgerechten Verlegung der Dachpappe bzw. der Dachschindeln sind in diesem Infovideo zu finden :

 

€ 59,00

Werkzeug-Set zum Aufbau

Mehr Details anzeigen

Werkzeug-Set zum Aufbau

Das perfekte Werkzeug-Set für dich zusammengestellt - sorgfältig ausgesuchte Werkzeuge, welche bei keiner Montage fehlen dürfen. Mit diesem Set hast du mit einem Klick alles, was du für den Aufbau deines neuen Traumproduktes brauchst.
Lass nichts dem Zufall überlassen und sichere dir das Werkzeug-Set mit den richtigen Tools von den Profis!

Inhalte des Sets:

  • 2 Paar Arbeitshandschuhe Größe 10,5 (XL)
    Die Arbeit mit Holz bereitet große Freude, welche nicht durch einen kleinen Splitter geschmälert werden darf. Mit Arbeitshandschuhen werden solche Verletzungen vermieden.
  • Metallhammer mit Gummiaufsatz
    Zum Nachschlagen der Bohlen eignet sich nicht jeder Hammer, weil Aufsätze aus Metall zu hart für den Kontakt mit Holz sind und dieses beim Aufschlagen beschädigen. Um solche Schäden zu verhindern, empfiehlt sich die Nutzung eines Metallhammers mit Gummiaufsatz. Da der Aufsatz abnehmbar ist, kann der Hammer später wunderbar für andere Arbeiten weiterverwendet werden.
  • Rollbandmaß 5 m
    Das regelmäßige Abmessen dient dem planmäßigen Aufbau, sowie der Stabilität. Gerade das problemlose Schließen der Türen und Fenster erfordert beim Aufbau das Arbeiten mit Präzision, welches mit einem Rollbandmaß gewährleistet wird.
  • Handsäge
    Teils beinhalten Produkte Dach- oder Bodenbretter, welche vor der Verwendung angepasst werden müssen. Mit der in diesem Set vorhandenen Handsäge stellt dies keine Herausforderung dar.
  • Wasserwaage 600 mm
    Da du wahrscheinlich nicht den schiefen Turm von Pisa in Ihrem Garten haben möchten, sondern ein stabiles und sicheres Gartenhaus, bietet es sich an während des Aufbaus eine Wasserwaage zu nutzen, um das Lot von Fundament und Produkt im Auge zu behalten.
  • Spanngurt 6 m
    Nur ein gerades Haus ist ein sicheres Haus! Setze die Spanngurte zum Ausloten und Geradeziehen der Wände ein, um die erforderlichen Diagonal- und Winkelmaße leicht einhalten zu können.
  • Flachpinsel mit 30 mm und 60 mm Bürstenlänge
    Die Auswahl der Farbe unterscheidet dein Gartenhaus von dem des Nachbarn. Mit den entsprechenden Pinseln sind bezüglich Individualität für größere, aber auch kleinere Anstriche keine Grenzen gesetzt. Das Set enthält daher Pinsel, zum Auftragen von Imprägnierung, Farbe und Lasuren.
  • Schraubzwinge 500 x 120 mm
    Die Bohlen werden beim Aufbau als Bohlenkränze nach und nach aufeinandergelegt. Die Schraubzwingen fixieren die Bohlen während des Vorgangs und halten diese gerade, damit dir der perfekte Aufbau gelingt.
  • Skelett-Kartuschenpresse und transparentes Acryl
    Lassen dir die Freude am neuen Produkt nicht durch Feuchtigkeit aufgrund undichter Stellen nehmen! Mit der Kartuschenpresse wird die beigefügte, transparente Acryl-Dichtmasse nahezu spurenlos zum Abdichten auf die jeweiligen Stellen aufgetragen.

€ 99,00

Premium Asymmetrische Dachschindeln schwarz-anthrazit 3m²

Mehr Details anzeigen

Premium Asymmetrische Dachschindeln schwarz-anthrazit 3m²

Hochwertige flexible Asymmetrische Bitumen Dachschindeln mit Trägereinlage aus Glasvlies und einem speziell eingefärbten Mineralgranulat auf der Oberseite. Das Verlegen von Bitumen-Dachschindeln verhindert das Eindringen von Wasser in die Dachfläche und bildet gleichzeitig eine windfeste und UV-beständige Oberfläche des Gartenhauses.

Diese Dachschindel ist aufgrund seiner besonders starken Glasvlies Einlage und seiner Materialstärke ein absolutes Premium Produkt und nicht mit Dachschindeln aus dem Baumarkt zu vergleichen !

Dachpappnägel gehören nicht zum Lieferumfang und müssen bauseits gestellt werden !!

Packungsinhalt: 3m²

Zur Abdeckung von Firstflächen wird zusätzlich ein Paket Rechteckschindeln benötigt.
Sind neben den Firstflächen noch Gratflächen, wie zum Beispiel bei Walmdächern und 5-Eck Häusern vorhanden, empfehlen wir ein weiteres Paket Rechteckschindeln.

 Tipps und Tricks zur fachgerechten Verlegung der Dachpappe bzw. der Dachschindeln sind in diesem Infovideo zu finden :
 

€ 59,00

Premium Rechteckschindeln grün 3m²

Mehr Details anzeigen

Premium Rechteckschindeln grün 3m²

Hochwertige Premium Rechteck-Bitumen Dachschindeln mit Trägereinlage aus Glasvlies und einem speziell eingefärbten Mineralgranulat auf der Oberseite. Das Verlegen von Bitumen-Dachschindeln verhindert das Eindringen von Wasser in die Dachfläche und bildet gleichzeitig eine windfeste und UV-beständige Oberfläche des Gartenhauses.

Diese Dachschindel ist aufgrund seiner besonderes starken Glasvlies Einlage und seiner Materialstärke ein absolutes Premium Produkt und nicht mit Dachschindeln aus dem Baumarkt zu vergleichen !!

 

Dachpappnägel gehören nicht zum Lieferumfang und müssen bauseits gestellt werden !!

 Packungsinhalt: 3m²

 Tipps und Tricks zur fachgerechten Verlegung der Dachpappe bzw. der Dachschindeln sind in diesem Infovideo zu finden :

€ 59,00

Bitumenkleber für Dachschindeln

Mehr Details anzeigen

Bitumenkleber für Dachschindeln

Mit diesem hochwertigen Bitumenkleber kannst du windgefährdete Schindeln zusätzlich zu den Dachpappstiften fixieren und damit für die ideale Haltbarkeit deines Daches sorgen – perfekt auch für schnelle, zuverlässige Reparaturen geeignet. Der Kleber ist sofort gebrauchsfertig – kein Verdünnen, kein Erhitzen, einfach auftragen und befestigen.
Für optimale Haftung: Stelle sicher, dass die Fläche sauber, trocken und frei von Sand, Blättern oder anderen Verschmutzungen ist. Der Untergrund sollte nicht vereist oder mit Reif bedeckt sein.

· Farbe: schwarz

· Inhalt: 310 ml

· Zur Anwendung auf Holz und Bitumen

€ 29,00

Mehr Details anzeigen

PGH Fussbodenträger Kunststoff

Dieser Fußbodenträger aus neuem Kunststoff ist flexibel einsetzbar und in der Höhe verstellbar. So kann jeder unebene Untergrund ausgeglichen werden.

Artikeldetails:

  • Maße: ca. 16 x 16 x 5 cm
  • Material: Kunststoff
  • Anzahl: 1
  • Abstand der einzelnen Fußbodenträger: ca. 30 cm 
  • in zwei unterschiedlichen Verstellbereichen erhältlich
  • Höchstbelastung 450 kg bzw. 1400 kg
  • in Kombination mit Fußboden/Fundamenthölzer zu nutzen

€ 0,00

Mehr Details anzeigen

Dachschindeln hexagonal schwarz 3m²

Hochwertige flexible Hexagonal-Bitumen Dachschindeln mit Trägereinlage aus Glasvlies und einem speziell eingefärbten Mineralgranulat auf der Oberseite. Das Verlegen von Bitumen-Dachschindeln verhindert das Eindringen von Wasser in die Dachfläche und bildet gleichzeitig eine windfeste und UV-beständige Oberfläche des Gartenhauses.

Diese Dachschindel ist aufgrund seiner besonders starken Glasvlies Einlage und seiner Materialstärke ein absolutes Premium Produkt und nicht mit Dachschindeln aus dem Baumarkt zu vergleichen !!

Dachpappnägel gehören nicht zum Lieferumfang und müssen bauseits gestellt werden !!

Zur Abdeckung von Firstflächen wird zusätzlich ein Paket Rechteckschindeln benötigt. Sind neben den Firstflächen noch Gratflächen, wie zum Beispiel bei Walmdächern und 5-Eck Häusern vorhanden, empfehlen wir ein weiteres Paket Rechteckschindeln.

Für Firstflächen + 1 Paket
Für Gratflächen + 1 Paket

 Tipps und Tricks zur fachgerechten Verlegung der Dachpappe bzw. der Dachschindeln sind in diesem Infovideo zu finden :
 

€ 0,00

Zubehör für dein Produkt

Windverankerungs-Set für Blockbohlen

Mehr Details anzeigen

Windverankerungs-Set für Blockbohlen

Windverankerungs-Set für Blockbohlenhäuser

Wir empfehlen in besonders starken Windregionen dein Gartenhaus durch ein zusätzliches
Windverankerungs-Set zu sichern. Das Set besteht aus stabilen Gewindestangen, welche
mit Hilfe von speziellen Metallwinkeln und Spannungsfedern in allen vier Ecken von Außen
oder Innen in Ihren Gartenhaus montiert werden. Die Gewindestangen verbinden die unterste
und oberste Blockbohle und verhindert somit ein Auseinandergehen der einzelen Blockbohlen
und halten diese somit bei Sturm zusammen. Da man die einzelnen Blockbohlen nicht unter-
einander verschrauben sollte, ist die Sicherung mit diesem Set die beste Möglichkeit die 
Bohlen untereinander zu verbinden. 

Im Set enhalten sind 

8 x Gewindestangen M6 x 1000mm (passend zur Montage an allen 4 Ecken, je 2 Stangen/Ecke) inkl. Verbindungsmuffen, Montagewinkel, Spannungsfedern und Montagematerial mit Schrauben. 

Das Montagematerial (Schrauben) ist für Blockbohlenhäuser von einer Wandstärke vom 19-45 mm
geeignet. Wenn du das Set bei starken Blockbohlen (über 45 mm) verwendest, müssen die
Schrauben bauseits gegen längere Schrauben ausgetauscht werden !!

Für eine signifikante Verbesserung der Standfestigkeit empfehlen wir eine Kombination aus diesem Set und dem
Sturmwinkel Set für eine Befestigung auf der Fundamentplatte. 

 Tipps und Tricks zur fachgerechten Montage der Sturmwinkel bzw. des Winderverankerungs Sets sind in diesem Infovideo zu finden:

 

€ 49,00

Holz Bar

Mehr Details anzeigen

Holz Bar

 Artikelbeschreibung:

  • Außenmaß: 200 x 75 cm
  • Sockelmaß: 190 x 65 cm
  • Gesamthöhe: ca. 110 cm
  • Tresentiefe: ca. 45 cm
  • inkl. Aufbauanleitung & Montagematerial
  • Materialstärke: 40 mm
  • Seitenverkehrte Montage möglich

€ 159,00

Komfort Garantie

Mehr Details anzeigen

Komfort Garantie

Welche Produkte sind durch die Gartenhaus.com Garantie abgedeckt?

Unsere Komfort Garantie gilt ausschließlich für privat genutzte Produkte. Dazu zählen: 

  • Garten- & Gerätehäuser – dein Rückzugsort oder einfache Lösung zur Aufbewahrung
  • Saunen – für wohltuende Entspannung und Wellness im eigenen Zuhause
  • Kinderspielgeräte – Spiel und Spaß für Groß und Klein
  • Holzpavillons - für dein persönliches Paradies im Garten
  • Carports – zuverlässiger Schutz für dein Fahrzeug vor Regen, Schnee und Sonne
  • Garagen – sicherer Stellplatz mit zusätzlichem Stauraum für deine Bedürfnisse

Mit unserer Garantie kannst du dich auf die Qualität deines Produkts verlassen. Sollte doch einmal etwas nicht passen, sind wir schnell und unkompliziert für dich da.

Was beinhaltet die Komfort Garantie?

Dank unserer Komfort Garantie musst du dir keine Sorgen machen. Geht etwas kaputt, bekommst du von uns die passenden Ersatzteile für folgende Bereiche: 

  • Türen (Glasschäden bis zu 200 €)
  • Fenster (Glasschäden bis zu 200 €)
  • Dachrinne – für einen sicheren Wasserablauf
  • Türschloss – für zuverlässigen Schutz
  • Beschläge – falls kleine, aber wichtige Teile ersetzt werden müssen
  • Dacheindeckung (Dachpappe, Dachschindeln, KSK) – für optimalen Schutz vor Wind und Wetter

Wichtig:

Die Komfort-Garantie umfasst ausschließlich die Lieferung der Ersatzteile. Der Einbau liegt in deiner Hand. Für eine professionelle Montage wähle die Premium-Garantie. 

Mit der Komfort Garantie bist du gut abgesichert und kannst dein Gartenhaus.com-Produkt unbesorgt genießen.

Garantiebedingungen

Alle Details und mehr Infos zur Komfort Garantie

Noch Fragen? Unser Kundenservice ist jederzeit für dich da!

€ 69,00

Premium Garantie

Mehr Details anzeigen

Premium Garantie

Für welche Produkte gilt die Gartenhaus.com Garantie?

Unsere Premium Garantie gilt ausschließlich für Produkte, die du privat nutzt. Dazu gehören:

  • Garten- & Gerätehäuser – dein Rückzugsort oder einfache Lösung zur Aufbewahrung
  • Saunen – für wohltuende Entspannung und Wellness im eigenen Zuhause
  • Kinderspielgeräte – Spiel und Spaß für Groß und Klein
  • Holzpavillons - für dein persönliches Paradies im Garten
  • Carports – zuverlässiger Schutz für dein Fahrzeug vor Regen, Schnee und Sonne
  • Garagen – sicherer Stellplatz mit zusätzlichem Stauraum für deine Bedürfnisse

Mit unserer Garantie kannst du sicher sein, dass dein Produkt hochwertig verarbeitet ist und wir dir im Fall der Fälle schnell und unkompliziert weiterhelfen.

Was beinhaltet die Premium Garantie?

Unsere Premium Garantie sorgt dafür, dass du dich entspannt zurücklehnen kannst. Falls ein Problem auftritt, schicken wir dir Ersatzteile für folgende Komponenten:

  • Türen (Glasschäden bis zu 200 €)
  • Fenster (Glasschäden bis zu 200 €)
  • Dachrinne – für einen sicheren Wasserablauf
  • Türschloss – für zuverlässigen Schutz
  • Beschläge – falls kleine, aber wichtige Teile ersetzt werden müssen
  • Dacheindeckung (Dachpappe, Dachschindeln, KSK) – für optimalen Schutz vor Wind und Wetter

Extra-Service in der Premium Garantie:

Inklusive Handwerksservice & Ersatzteileinbau: Du bekommst nicht nur die Ersatzteile, sondern auch den professionellen Einbau dazu!

Mit unserer Premium Garantie bist du rundum abgesichert – für langanhaltende Freude an deinem Produkt.

Garantiebedingungen

Alle Details und mehr Infos zur Premium Garantie

Noch Fragen? Unser Kundenservice ist jederzeit für dich da!

 

€ 579,00

PGH Solarbetriebener Lüfter

Mehr Details anzeigen

PGH Solarbetriebener Lüfter

Praktisches Lüften mit solarbetriebenem Ventilator – hervorragend für die Grundlüftung in Gartenhäusern, Abstellräumen, Garagen und dergleichen geeignet. Bist du wie viele andere Menschen auch neugierig auf Solarzellenlösungen? Mit solarbetriebenen Lüftern vermeidest du sowohl elektrische Installations- als auch Betriebskosten. Die Montage erfolgt schnell und einfach. Außerdem tust du etwas Gutes für die Umwelt!

 

Weitere Informationen

 

  • Lüftet und reduziert das Risiko von Feuchtigkeitsschäden und Schimmel
  • Reibungslose und schnelle Montage 
  • Umweltfreundliche Alternative 
  • Vollautomatisch 
  • Kann als Abluft- oder Zuluftventil verwendet werden 
  • Wartungsfrei 

 

Überlegst du, wie du die Belüftung in deinem Gartenhaus, in der Garage oder in einem Lagerraum optimieren kannst? Dann könnte unsere Lüftungen mit solarbetriebenen Ventilatoren eine Lösung für dich sein. Diese Art von Lüftung funktionieren in allen Arten von Häusern, unabhängig davon, ob diese isoliert sind oder nicht. Die Montage ist innerhalb kürzester Zeit erledigt! 

Der solarbetriebene Ventilator belüftet den Raum und verringert das Risiko von Feuchtigkeit und Feuchtigkeitsschäden und Schimmel. Er erscheint mit zwei verschiedenen Lüftern und kann somit entweder als Ab- oder Zuluftventil verwendet werden. Für Lagerbereiche empfehlen wir beispielsweise die Verwendung des solarbetriebenen Lüfters als Abluftventil, denn in nicht isolierten Häusern ist kein Zuluftventil erforderlich. In isolierten Gartenhäusern kannst du ein Standard-Zuluftventil hinzufügen oder zwei solarbetriebene Ventile verwenden – eines für Abluft und eines für Zuluft. Denke in diesem Fall daran, das Abluftventil so zu platzieren, dass es die meiste Sonne bekommt.

 

Technische Daten

- Lüfterkapazität:  60 m³/h

- Spannung Solarpanel:  3,5 V

- Maße Solarpanel:  240 x 210 mm

- Wandloch:  110 mm Durchmesser

- Gewicht:  0,75 g

€ 49,00

Zubehör für den Außenbereich

PGH Dachrinnenset verzinkt - für 2 Dachseiten bis je 6 m

Mehr Details anzeigen

PGH Dachrinnenset verzinkt - für 2 Dachseiten bis je 6 m

Für Flach- und Pultdächer mit Seitenlänge bis 6 m, komplettes Set für 2 Holzhausseiten

Das PGH Dachrinnen-Set schützt Wände und Fundamente von Garten- und Blockhäusern sicher und zuverlässig vor Schäden durch Regenwasser.

Im Lieferumfang des Dachrinnen-Sets sind enthalten:

  • 4x Fallrohrbogen Ø80mm   
  • 26x Rinneisen + Rinneisenhalterung 125 mm
  • 4x Rinnenverbinder
  • 4x Mauerhalterung 
  • 2x Verbindungsstück Ø80mm 
  • 6x Dachrinne 125mm 
  • 52x Spanplattenschraube, rostfreier Stahl Ø4.0x40mm
  • 2x Fallrohrbogen Ø80mm
  • 26x Fallrohrbogen Ø80mm 
  • 4x Endstück 
  • 4x Eindrehstift für Wandhalterung 
  • 2x Dachrinnenablauf Ø80mm
  • 2x Fallrohr Ø90mm 

€ 649,00

Rinneneinhang

Mehr Details anzeigen

Rinneneinhang

Ein Rinneneinhang ist der fachgerechte Abschluss an der Dachtraufe. Er ist das Übergangsblech von der Dachfläche zur Dachrinne. Der Einsatz sorgt für kontrollierten Wassereinlauf in die Dachrinne.

Material: Stahl verzinkt, pulverbeschichtet

Maße: A:60mm B:125mm D:15mm

Länge:200cm Stärke:0,50mm

Schrauben sind nicht im Lieferumfang. Passende Spenglerschrauben sind hier.

€ 49,00

Anbauschuppen 28-A - naturbelassen

Mehr Details anzeigen

Anbauschuppen 28-A - naturbelassen

Testsieger:

Dieser Anbauschuppen ist von der „Haus & Garten Test“ mit der Note 1,3 als „pfiffiger Anbauschuppen zur Erweiterung eines Gartenhauses“ prämiert worden. Lesen Sie das Testurteil – zusammen mit dem Gartenhaus Valencia.

Gewinnen Sie wertvollen Stauraum und Abstellmöglichkeiten mit dem Anbauschuppen 28-A – Das Raumwunder lässt sich unkompliziert an Ihr neues Gartenhaus montieren und fügt sich harmonisch in jeden Garten ein!
Endlich reichlich Platz für Rasenmäher, Gartengeräte & Co., sicher verschlossen und unsichtbar vor neugierigen Blicken. Auch bestens geeignet als Unterstand für eine (Chemie) Toilette oder Einbau eines Gäste-WC.

Artikelbeschreibung:

  • Außenmaß: 160 x 280 cm
  • Sockelmaß: 150 x 260 cm
  • Grundfläche: 3,64 m²
  • Seitenwandhöhe: ca. 148 cm
  • Gesamthöhe: ca. 188 cm
  • Rauminhalt: ca. 6,5 m³
  • Leimholz-Einzeltür: ca. 82,8 x 150 cm
  • Wandstärke: 28 mm
  • Material: nordische Fichte

Im Lieferumfang enthalten:

  • Massivholzdach aus 18 mm Nut- und Federbrettern
  • Massivholzfußboden aus 18 mm Nut- und Federbrettern 
  • alle Blockbohlen mit 4-fach Eckausfräsung (wind- u. regendicht)
  • hochwertige Einzeltür mit Leimholzrahmen
  • hochwertige Türschwelle aus Aluminium
  • Imprägnierte Fundamenthölzer
  • Schloss, Drückergarnitur & Montagematerial
  • Sturmleisten für Windsicherung
  • Lieferung in natur ohne Imprägnierung und Farbbehandlung
  • Passendes optionales Zubehör:
    • Bedarf Dachpappe: 1 Rolle
    • Bedarf Dachschindeln 2 Pakete
    • Bedarf Dachpappstifte: 2 Pakete (für Eindeckung mit Dachpappe und Dachschindeln)

Der Anbauschuppen kann wahlweise rechts oder links vom Gartenhaus angebaut werden !!!

Wir weisen darauf hin, dass das Produkt ständig weiterentwickelt wird und damit in Details von dem dargestellten Foto abweichen kann. Insbesondere Kundenbilder stellen teils von Kunden modifizierte Modelle dar.

€ 869,00

Dachrinnenset RG 100 anthrazit metallic - für 2 Dachseiten bis je 6 m

Mehr Details anzeigen

Dachrinnenset RG 100 anthrazit metallic - für 2 Dachseiten bis je 6 m

Für Gartenhäuser aus Holz mit Seitenlängen bis 6 m, komplettes Set für 2 Holzhausseiten

Dachrinnenset für Gartenhäuser mit Stirnbrett - bei Gartenhäusern ohne Stirnbrett muss dieses bauseits für die Montage gestellt werden

Marley Dachrinnen-Sets schützen Wände und Fundamente von Garten- und Blockhäusern sicher und zuverlässig vor Schäden durch Regenwasser.

Vorteile:

  • Komplettes Set mit Rinnen, Fallrohren und Befestigungszubehör
  • Leicht zu montieren
  • Alles komplett im Set
  • witterungs-, UV- und temperaturbeständig
  • Schlagfester, hochwertiger Kunststoff
  • Top Qualität - Made in Germany
  • 10 Jahre Garantie

Set-Inhalt:

  • 6x Dachrinne, halbrund 2 m RG 100
  • 4x Rinnenverbindungsschale RG 100
  • 4x Endstück für links und rechts RG100
  • 20x Rinnenhalter RG 100
  • 20x Verstellwinkel für Rinnenhalter
  • 2x Stutzen RG 100 / DN 75
  • 4x Rohrbogen DN 75, 45°
  • 2x Fallrohr DN 75 2 m
  • 4x Rohrschelle mit Ringschraube

€ 389,00

Anbauschuppen 28-A - imprägniert Pinie/Kiefer

Mehr Details anzeigen

Anbauschuppen 28-A - imprägniert Pinie/Kiefer

Testsieger:

Dieser Anbauschuppen ist von der „Haus & Garten Test“ mit der Note 1,3 als „pfiffiger Anbauschuppen zur Erweiterung eines Gartenhauses“ prämiert worden. Lesen Sie das Testurteil – zusammen mit dem Gartenhaus Valencia.

Gewinnen Sie wertvollen Stauraum und Abstellmöglichkeiten mit dem Anbauschuppen 28-A – Das Raumwunder lässt sich unkompliziert an Ihr neues Gartenhaus montieren und fügt sich harmonisch in jeden Garten ein!
Endlich reichlich Platz für Rasenmäher, Gartengeräte & Co., sicher verschlossen und unsichtbar vor neugierigen Blicken. Auch bestens geeignet als Unterstand für eine (Chemie) Toilette oder Einbau eines Gäste-WC.

Artikelbeschreibung:

  • Außenmaß: 160 x 280 cm
  • Sockelmaß: 150 x 260 cm
  • Grundfläche: 3,64 m²
  • Seitenwandhöhe: ca. 148 cm
  • Gesamthöhe: ca. 188 cm
  • Rauminhalt: ca. 6,5 m³
  • Leimholz-Einzeltür: ca. 82,8 x 150 cm
  • Wandstärke: 28 mm
  • Material: nordische Fichte

Im Lieferumfang enthalten:

  • Massivholzdach aus 18 mm Nut- und Federbrettern
  • Massivholzfußboden aus 18 mm Nut- und Federbrettern 
  • alle Blockbohlen mit 4-fach Eckausfräsung (wind- u. regendicht)
  • hochwertige Einzeltür mit Leimholzrahmen
  • hochwertige Türschwelle aus Aluminium
  • imprägnierte Fundamenthölzer
  • Schloss, Drückergarnitur & Montagematerial
  • Sturmleisten für Windsicherung
  • Lieferung in imprägniert Pinie/Kiefer ohne Farbendbehandlung (die Imprägnierung kann ggf. farblich vom Haus abweichen)
  • Passendes optionales Zubehör:
    • Bedarf Dachpappe: 1 Rolle
    • Bedarf Dachschindeln 2 Pakete
    • Bedarf Dachpappstifte: 2 Pakete (für Eindeckung mit Dachpappe und Dachschindeln)

Der Anbauschuppen kann wahlweise rechts oder links vom Gartenhaus angebaut werden !!!

Wir weisen darauf hin, dass das Produkt ständig weiterentwickelt wird und damit in Details von dem dargestellten Foto abweichen kann. Insbesondere Kundenbilder stellen teils von Kunden modifizierte Modelle dar.

€ 899,00

Mehr Details anzeigen

Premium-Deckfarben-Set XL

PGH Premium Holzschutzgrund* Imprägnierung, PGH Premium Isoliergrund Voranstrich, PGH Premium Wetterschutzfarbe

Deckfarben-Set mit bis zu 15% Ersparnis gegenüber dem Einzelkauf!

Passend zum Haus – alles dabei, was du für die Farbbehandlung dieses Hauses brauchst. Dieses Set ist für Flächen bis ca. 40 m² berechnet. Mit diesem Set hast du mit einem Klick alles, was du für den Außenanstrich für dein Gartenhaus brauchst. – und das in ausreichender Menge.

Bestehend aus:

  • PGH Premium Holzschutzgrund* Imprägnierung (3 Gebinde á 2,5 l) zum vorbeugenden Schutz vor Bläue-, Insekten- und Pilzbefall.
  • PGH Premium Isoliergrund Voranstrich (3 Gebinde á 2,5 l) gegen das Durchschlagen von farbigen Holzinhaltsstoffen und Vermeidung von Gelbverfärbungen bei hellen Deckanstrichen.
  • PGH Premium Wetterschutzfarbe  (5 Gebinde á 2,5 l) in der Farbe weiß, lichtgrau, anthrazitgrau, moosgrün, schwedenrot, taubenblau, fenstergrau oder sepiabraun. Hervorragend geeignet für die farbliche Endbehandlung.
  • PGH Premium Wetterschutzfarbe für Fenster & Türen in der Farbe weiß (1 Gebinde á 2,5 l). Farblicher Akzent für Fenster & Türen und vorbeugender Schutz vor Verziehen von Fenster- und Türrahmen.

Die GartenHaus Profis empfehlen:

  1. Einmaliger Auftrag mit PGH Holzschutzgrund* Imprägnierung, zum vorbeugenden Schutz vor Bläue-, Insekten- und Pilzbefall.
  2. Bei hellen Deckanstrichen: Ein Anstrich mit PGH Isoliergrund gegen das Durchschlagen von farbigen Holzinhaltsstoffen und Vermeidung von Gelbverfärbungen.
  3. Versiegel von Außen dein Wunschprodukt mit zwei Anstrichen PGH Wetterschutzfarbe in deiner Wunschfarbe und schütze es so lange Zeit wirksam vor Witterungseinflüssen.
  4. Fenster, Türen und Rahmen von Innen und Außen mit zwei Anstrichen PGH Wetterschutzfarbe in weiß behandeln. Das verhindert, dass Fenster- und Türrahmen sich verziehen. Außerdem sorgt es für farbliche Akzente.

Beschreibung PGH Holzschutzgrund Imprägnierung:

PGH Holzschutzgrund ist eine wasserbasierte, bläueschützende Holzimprägnierung für den Außenbereich.

PGH Holzschutzgrund dient zur vorbeugenden Anwendung und sicheren Schutz gegen Bläuepilze auf Hölzern ohne Erdkontakt im Außenbereich.

Anwendungsgebiete:

Holz im Außenbereich z.B. Holzfassaden, Carports, Fenster und Außentüren, Dachuntersichten.

Eigenschaften:

  • bläueschützende Imprägnierung für außen
  • tiefenwirksam
  • wasserbasiert
  • farblos

Reichweite:

  • 2,5l reichen für ca. 18-21 m² bei einmaligem Anstrich

* Biozidprodukte vorsichtig verwenden. Vor Gebrauch stets Kennzeichnung und Produktinformation lesen.

Beschreibung PGH Isoliergrund:

PGH Isoliergrund ist der wasserbasierte, weiße Spezialgrundanstrich für Holz im Innen- und Außenbereich.

PGH Isoliergrund verhindert durch seine spezielle Rezeptur das Durchschlagen von wasserlöslichen, färbenden Holzinhaltsstoffen und damit eine Fleckenbildung an der Oberfläche des Anstrichs. Er ist außen und innen einsetzbar auf allen Laub- und Nadelhölzern. Kann auch zur Grundierung von MDF-, OSB- und Spanplatten eingesetzt werden.

Anwendungsgebiete: 

Holz im Innen- und Außenbereich z.B. Laub- und Nadelhölzer, sowie MDF-, OSB- und Spanplatten

Eigenschaften:

  • isolierende Vorbehandlung für innen und außen
  • gegen das Durchschlagen von Holzinhaltsstoffen
  • wasserbasiert
  • weiß

Reichweite:

  • 2,5l reichen für ca. 20-25 m² bei einmaligem Anstrich

Beschreibung PGH Premium Wetterschutzfarbe:

PGH Wetterschutzfarbe ist die seidenglänzende, schnell trocknende und wasserverdünnbare Holzdeckfarbe für außen.PGH Wetterschutzfarbe ist umweltschonend, weil schadstoffarm, leicht zu verarbeiten, hoch wetterbeständig und wasserdampfdurchlässig.

PGH Wetterschutzfarbe ist UV-beständig und nach einer entsprechenden Untergrundvorbehandlung und Grundierung ideal geeignet für Anstriche auf Nadel- und Laubhölzern im Außenbereich. Enthält einen integrierten Oberflächenschutz gegen Algen- und Pilzbefall. Nicht für Sitzmöbel, Tischplatten oder Flächen mit Lebensmittelkontakt einsetzen.

Anwendungsgebiete:

Holz im Außenbereich z.B. Gartenhäuser, Carports, Zäune oder Saunen

Eigenschaften:

  • deckender Schutzanstrich für außen
  • UV- und wetterbeständig
  • feuchtigkeitsregulierend
  • seidenglänzend

Reichweite:

  • 2,5l reichen für ca. 13-20 m² bei einmaligem Anstrich

Achtung: Set enthält Farb-Material zum bauseitigen Selbstanstrich. Farbdarstellung kann je nach Bildschirm variieren und ist somit nicht verbindlich!

€ 0,00

Holz Terrassendielen Set für 3 m² in imprägnierter Kiefer

Mehr Details anzeigen

Holz Terrassendielen Set für 3 m² in imprägnierter Kiefer

Das hochwertige Terrassendielen Set aus imprägnierter Kiefer besticht durch seine sehr breite Anwendungsmöglichkeit. Das Set lässt sich individuell und sehr leicht auf jede Terrasse anpassen und kann ganz einfach mit weiteren Sets in der Größe erweitert werden. Das Holz der Dielen und der Unterkonstruktion überzeugt durch eine gute Dauerhaftigkeit. Die Schrauben sind aus hochwertigem und rostfreiem Edelstahl. So hast du lange Freude an deiner Terrasse.

 Einfache Montage

✓ Individuell anpassbar

✓ Dauerhaftes Holz

✓ Rostfreie Edelstahlschrauben

Praktisch - direkte Lieferung zu dir nach Hause

Artikeldetails:

  • Länge der Dielen: 3 m (Paketinhalt: 3,045 m²)
  • Anzahl Dielen/Paket: 7
  • Profilmaß: 28 x 145 mm
  • Profilierung: einseitig grob genutet, einseitig gehobelt
  • Material: Kiefer KDI

Im Lieferumfang enthalten:

  • 7 x kesseldruckimprägnierte Kiefer-Terrassendielen je 3 m (Paketinhalt: 3,045 m²); Profil: 28 x 145 mm
  • 4 x Unterkonstruktionsbalken je 3 m; Profil 45 x 7 mm
  • 120 Stk. Edelstahlschrauben 5 x 50 mm für Holzdielen
  • 20 Stk. Edelstahlschrauben 5 x 70 mm für Unterkonstruktion

Einfache Montage:

Das 3 m² Terrassendielenset besteht aus 7 Stk. kesseldruckimprägnierten Kiefer-Terrassendielen je 3 m, 4 Stk. Unterkonstruktionsbalken je 3 m, 120 Stk. Edelstahlschrauben 5 x 50 mm für die Dielen sowie 20 Stk. Edelstahlschrauben 5 x 70 mm für die Unterkonstruktion. Das Set kann mit weiteren Sets derselben Holzart individuell zu größeren Terrassen kombiniert werden.

Das Terrassendielen-Set ist ausschließlich für den privaten Gebrauch geeignet und nicht für gewerbliche Zwecke zu verwenden. Bitte benutze das Terrassendielen-Set nur wie in der Anleitung beschrieben. Andernfalls kann eine unsachgemäße Verwendung zu Personen- oder Sachschäden führen.

Die Terrassendielen und Unterkonstruktionsbalken (UK) können individuell zugeschnitten werden. Die UK bildet einen Rahmen mit Zwischenbalken. Dieser Rahmen wird mit Gefälle und Distanzklötzen oder z.B. Terrassenplatten oder Rasensteinen auf dem Untergrund ausgerichtet und fixiert. Anschließend werden die Dielen ausgerichtet und mit der UK verschraubt.

1. Der Untergrund sollte aus einer ausreichend verdichteten und frostsicheren Fläche mit geringem Gefälle von 2-3 % bestehen. Ggf. kann der Untergrund zusätzlich mit einem Unkrautvlies vorbereitet werden.

2. Die UK Balken werden zugesägt und gem. Abb. mit 5 x 70 mm Edelstahlschrauben verschraubt (ggf. vorbohren). Die Abstände der Zwischenbalken sollten nicht größer als 45-50 cm sein. Der UK Rahmen wird nun auf dem Untergrund mit Gefälle auf den Auflagepunkten ausgerichtet und kann ggf. mit Dübeln oder Schrauben fixiert (nicht im Lieferumfang enthalten) werden. Die Auflagepunkte sollten in Längs- und Querrichtung ca. 50-60 cm entfernt sein.

3. Säge die Terrassendielen zu. Die Dielen sollten an den Enden ca. 2-10 cm über der UK überstehen. Längsseitig sollten 4 cm nicht überschritten werden. Verschraube die Dielen mit den 5 x 50 mm Edelstahlschrauben. Bitte halte den Mindestabstand der Verschraubungspunkte zu den Randbereichen der Diele von min. 25 mm ein, um ein Reißen des Holzes zu vermeiden (ggf. vorbohren). Verschraube die Dielen an allen Kreuzungspunkten mit der UK. Der Fugenabstand der Dielen sollte 5-8 mm betragen.

4. Es empfiehlt sich, die Terrassendielen vor oder nach der Montage mit einer Lasur oder Öl zu behandeln, um diese besser gegen Witterungseinflüsse zu schützen.

€ 99,00

Holz Terrassendielen Set für 3m² in RedClass

Mehr Details anzeigen

Holz Terrassendielen Set für 3m² in RedClass

Das hochwertige Terrassendielen Set aus Red-Class besticht durch seine sehr breite Anwendungsmöglichkeit. Das Set lässt sich individuell und sehr leicht auf jede Terrasse anpassen und kann ganz einfach mit weiteren Sets in der Größe erweitert werden. Das Holz der Dielen und der Unterkonstruktion überzeugt durch eine gute Dauerhaftigkeit. Die Schrauben sind aus hochwertigem und rostfreiem Edelstahl.So hast du lange Freude an deiner Terrasse.

 Einfache Montage

✓ Individuell anpassbar

✓ Dauerhaftes Holz

✓ Rostfreie Edelstahlschrauben

Praktisch - direkte Lieferung zu dir nach Hause

Set-Inhalt:

  • 7 x Holz-Terrassendielen je 3m
  • 4 x 3m Unterkonstruktionsbalken (4,5x7,0cm) 
  • 120 x Edelstahlschrauben 5x50mm für Holzdielen
  • 20 x Edelstahlschrauben 5x70mm für Unterkonstruktion

Artikeldetails:

  • Länge der Dielen: 300 cm (Paketinhalt: 3,045 m²)
  • Anzahl Dielen/Paket: 7
  • Profilmaß: 28 x 145 mm
  • Profilierung: einseitig grob genutet, einseitig gehobelt
  • Material: Red-Class

Im Lieferumfang enthalten:

  • 7x Dielen: 300 cm (Paketinhalt: 3,045 m²); Profil: 28 x 145 mm
  • 4x 3 Meter Unterkonstruktion; Profil 45 x 7 mm
  • 120 Stk. Edelstahlschrauben 5 x 50 mm
  • 20 Stk. Edelstahlschrauben 5 x 70 mm

Einfache Montage:

Das 3m² Terrassendielenset besteht aus 7 Stk. Holz-Terrassendielen a 3m, 4 Stk. Unterkonstruktionsbalken a 3m, 120 Stk. Edelstahlschrauben 5x50 für die Dielen sowie 20 Stk. Edelstahlschrauben 5x70 für die Unterkonstruktion. Das Set kann mit weiteren Sets derselben Holzart individuell zu größeren Terrassen kombiniert werden. Das Terrassendielen-Set ist ausschließlich für den privaten Gebrauch geeignet und nicht für gewerbliche Zwecke zu verwenden. Bitte benutze das Terrassendielen-Set nur wie in dieser Anleitung beschrieben. Andernfalls kann eine unsachgemäße Verwendung zu Personen- oder Sachschäden führen.

Die Terrassendielen und Unterkonstruktionsbalken (UK) können individuell zugeschnitten werden. Die UK bildet einen Rahmen mit Zwischenbalken. Dieser Rahmen wird mit Gefälle und Distanzklötzen oder z.B. Terrassenplatten oder Rasensteinen auf dem Untergrund ausgerichtet und fixiert. Anschließend werden die Dielen ausgerichtet und mit der UK verschraubt.

1. Der Untergrund sollte aus einer ausreichend verdichteten und frostsicheren Fläche mit geringem Gefälle von 2-3 % besehen. Ggf. kann der Untergrund zusätzlich mit einem Unkrautvlies vorbereitet werden.

2. Die UK Balken werden zugesägt und gem. Abb. mit 5x70 Edelstahlschrauben verschraubt, ggf. vorbohren. Die Abstände der Zwischenbalken sollten nicht größer als 45-50 cm sein. Der UK Rahmen wird nun auf dem Untergrund mit Gefälle auf den Auflagepunkten ausgerichtet und kann ggf. mit Dübeln oder Schrauben fixiert (nicht im Lieferumfang enthalten) werden. Die Auflagepunkte sollten in Längs- und Querrichtung ca. 50-60cm entfernt sein.

3. Säge die Terrassendielen zu. Die Dielen sollten an den Enden ca. 2-10 cm über der UK überstehen. Längsseitig sollten 4 cm nicht überschritten werden. Verschraube die Dielen mit den 5x50 Edelstahlschrauben. Bitte halten den Mindestabstand der Verschraubungspunkte zu den Randbereichen der Diele von min 25 mm ein, um ein Reißen des Holzes zu vermeiden – ggf. vorbohren. Verschraube die Dielen an allen Kreuzungspunkten mit der UK. Der Fugenabstand der Dielen sollte 5-8 mm betragen.

4. Es empfiehlt sich, die Terrassendielen vor oder nach der Montage mit einer Lasur oder Öl zu behandeln, um diese besser gegen Witterungseinflüsse zu schützen.

€ 129,00

Marley Traufstreifen für Flachdach 2 x 1 m

Mehr Details anzeigen

Marley Traufstreifen für Flachdach 2 x 1 m

Produktbeschreibung:

Die Winkelausführung des Traufstreifens eignet sich beim Steildach in Verbindung mit verstellbaren Rinneneisen. Der Traufstreifen ragt dabei in die Dachrinne hinein. Die Feder des Rinneneisens ist zu kürzen und der Traufstreifen mit Pappnägeln zu befestigen.

 

Universell einsetzbar

✓ Einfache und schnelle Montage

Ansprechendes Design

 

Produktdetails:

  • Farbe: Grau
  • Länge: 2 m

€ 49,00

Zubehör für den Innenbereich

PGH Hartwachsöl 0,75 L

Mehr Details anzeigen

PGH Hartwachsöl 0,75 L

Hochwertiges Hartwachsöl für Innenbereich

Unser Hartwachsöl bietet eine hochwertige Lösung für die Grundierung und Behandlung verschiedener saugfähiger Untergründe im Innenbereich. Mit einer seidenmatten, strapazierfähigen Oberfläche, die natürliche Strukturen belebt und Tönungen vertieft, bietet es beste Ergebnisse für Holz-, Kork- und Steinböden sowie andere Oberflächen. Einfach in der Anwendung und getestet gemäß höchsten Standards, ist es die ideale Wahl für professionelle Ergebnisse.

Artikeldetails zum Hartwachsöl:

  • Anwendung: Grundierung und Behandlung saugfähiger Untergründe im Innenbereich.

  • Eigenschaften: Seidenmatte Oberfläche, vertieft die Tönung, wasserabweisend.
  • Geprüft auf Chemikalienbeständigkeit und Migration.
  • Inhaltsstoffe: Leinöl, Holzöl, Ricinöl, Naturharzester, weitere.
  • VOC-Gehalt: Max. 440 g/l (EU-Grenzwert: max. 500 g/l).
  • Verarbeitung: Vor Gebrauch aufschütteln, dünn auftragen, polieren.
  • Trocknungszeit: Ca. 6-12 Std., überstreichbar nach 16-24 Std.
  • Verbrauch: 30-50 g/m²; Ergiebigkeit ca. 20 m²/l.
  • Lagerung: Kühl, trocken, ungeöffnet min. 24 Monate haltbar.
  • Entsorgung: Gemäß örtlichen Vorschriften.
  • Hinweise: Farbangaben unverbindlich, Probeanstrich empfohlen.

 

 

€ 49,00

Basic Ordnungs-Set

Mehr Details anzeigen

Basic Ordnungs-Set

Dieses Basic Ordnungs-Set ist das i-Tüpfelchen für Ihr neues Gartenhaus. Dank unseres sorgfältig zusammengestellten Ordnungssets stehen Besen, Säge und Co nicht mehr im Weg rum, sondern können bequem an den Wänden verstaut werden. Das ist nicht nur platzsparend, sondern garantiert auch ein einladendes und aufgeräumtes Raumgefühl.

Die im Set enthaltenen Haken haben eine hohe Tragfähigkeit und eignen sich hervorragend zum Sortieren und Verstauen von: Leiter, Eimer, Verlängerungskabel, Gießkanne, Gartenschlauch, Harke, Schaufel, etc., bis hin zum Fahrrad.

Das Ordnungsset besteht aus:

  • 2 x Standardhaken aus verzinktem Stahlrohr, rostfrei, Ø 16 mm, Tiefe 80 mm, Traglast bis zu 60 kg
  • 2 x Standardhaken, aus verzinktem Stahlrohr, rostfrei, Ø 16 mm, Tiefe 210 mm, Traglast bis zu 60 kg
  • 2 x Standardhaken, aus verzinktem Stahlrohr, rostfrei, Ø 16 mm, Tiefe 285 mm, Traglast bis zu 60 kg
  • 5 x kleine Einzelhaken aus Stahl, Ø 8 mm, Höhe 8 cm, Traglast von bis zu 50 kg
  • 1 x ummantelter, roter Doppelhaken, Ø 10 mm, Tiefe 70 mm, Traglast von bis zu 80 kg
  • 1 x Halter für 1 Handgriffe, Durchmesser 16-32 mm
  • 1 x Fahrradhaken mit Befestigung durch das Rad
  • 1 x Haken für 1 Handwerkzeug, Ø 16 mm, Höhe 158 mm, Breite 166 mm, Tiefe 115 mm, Traglast bis zu 30 kg

€ 29,00

Standard Ordnungs-Set

Mehr Details anzeigen

Standard Ordnungs-Set

Dieses Ordnungs-Set ist das i-Tüpfelchen für Ihr neues Gartenhaus. Dank unseres sorgfältig zusammengestellten Ordnungssets stehen Besen, Säge und Co nicht mehr im Weg rum, sondern können bequem an den Wänden verstaut werden. Das ist nicht nur platzsparend, sondern garantiert auch ein einladendes und aufgeräumtes Raumgefühl.

Die im Set enthaltenen Haken haben eine hohe Tragfähigkeit und eignen sich hervorragend zum Sortieren und Verstauen von: Leiter, Eimer, Verlängerungskabel, Gießkanne, Gartenschlauch, Harke, Schaufel, etc., bis hin zum Fahrrad. Einige von den Haken sind außerdem zum Schutz ummantelt.

Das Ordnungsset besteht aus:

  • 2 x umhüllter Standardhaken, aus verzinktem Stahlrohr, rostfrei, Ø 16 mm, Tiefe 80 mm, Traglast 60 kg
  • 2 x umhüllter Standardhaken, aus verzinktem Stahlrohr, rostfrei, Ø 16 mm, Tiefe 210 mm, Traglast 60 kg
  • 2 x umhüllter Standardhaken, aus verzinktem Stahlrohr, rostfrei, Ø 16 mm, Tiefe 285 mm, Traglast 60 kg
  • 5 x Einzelhaken aus verzinktem Stahl, Ø 9 mm, Höhe 125 mm, Breite 40 mm, Traglast von bis zu 50 kg
  • 1 x umhüllter, schwarzer Doppelhaken, Ø 10 mm, Tiefe 165 mm, Traglast von bis zu 80 kg
  • 1 x Multi-Konzept-Hakenträger mit 3 Aufhängungspunkten, Ø 16 mm, Höhe 35 mm, Länge 27 mm, Tiefe 120 mm
  • 1 x umhüllter Fahrradhaken mit Befestigung durch das Rad
  • 5 x Mehrzweckhalter, Ø 10 mm, Tiefe 70 mm, Traglast von bis zu 80 kg
  • 1 x Haken für 3 Handwerkzeug, Ø 16-32 mm, Höhe 158 mm, Breite 166 mm, Tiefe 115 mm, Traglast bis zu 30 kg

€ 49,00

Premium Ordnungs-Set

Mehr Details anzeigen

Premium Ordnungs-Set

Dieses Ordnungs-Set ist das i-Tüpfelchen für Ihr neues Gartenhaus. Dank unseres sorgfältig zusammengestellten Ordnungssets stehen Besen, Säge und Co nicht mehr im Weg rum, sondern können bequem an den Wänden verstaut werden. Das ist nicht nur platzsparend, sondern garantiert auch ein einladendes und aufgeräumtes Raumgefühl.

Die im Set enthaltenen Haken haben eine hohe Tragfähigkeit und eignen sich hervorragend zum Sortieren und Verstauen von: Leiter, Eimer, Verlängerungskabel, Gießkanne, Gartenschlauch, Harke, Schaufel, etc., bis hin zum Fahrrad. Einige von den Haken sind außerdem zum Schutz stark ummantelt.

Das Ordnungsset besteht aus:

  • 2 x Haken in Rohr umhüllt, Ø 20 mm, Tiefe 150 mm, Traglast 90 kg
  • 5 x verzinkte Flacheisenhaken, Stahl 1,2 mm Stärke, Breite 25 mm, Tiefe 25 mm, Höhe 73 mm
  • 1 x Pro Halter für 3 Handgriffe , Ø 16 - 40 mm, Tiefe 285 mm, auf der Leiste verschiebbar
  • 1 x Gestellrahmen mit 7 Minihaken in lackiertem Stahldraht
  • 1 x Doppelhaken, Ø 16 mm x 2, Länge 250 mm, Traglast von bis zu 80 kg
  • 1 x Fahrradhaken in Rohr umhüllt mit Befestigung durch das Rad, Ø 20 mm
  • 5 x Mehrzweckdoppelhaken, Breite 75 mm, Tiefe 48 mm, Höhe 60 mm, Traglast von bis zu 20 kg
  • 1 x Doppelhaken in Rohr, Ø 20 mm, Länge 200 mm, Traglast bis zu 70 kg

€ 99,00

Montage und Services

Mehr Details anzeigen

Montage GartenHaus Block Ein-Raum bis 30m²

GartenHaus Montageservice: Fachgerechte Montage vom Profi zum Bestpreis!

Wähle bequem aus unseren Montage-Sets das für dich passende Gesamtpaket.

Option 1  –  Basic Montage – Haus:

In diesem Set sind enthalten:

·         Der Aufbau des Produktes mit dem kompletten Aufbau ab Oberkante Fundament, inklusive allen im Bausatz enthaltenen Zubehörteilen. Tragewege zum Aufbauort bis 15 m sind im Preis inklusive.

·         Wenn du dich für das Sparset "Montagezubehör und Befestigung" entscheidest, ist auch die Montage dieses Sets inklusive. Wir empfehlen dieses dringend zum sicheren Aufbau. Es schützt dein Produkt effektiv gegen Feuchtigkeit und starken Wind.

Wenn du weiteres Zubehör montieren willst, kannst du das als Zusatzmontage dazu buchen. Die findest du direkt bei deinem Wunschprodukt..

Option 2  – Premium Montage  – Haus und Dacheindeckung:

In diesem Set sind enthalten:

·         Alle Leistungen aus Montage Option 1

·         Zusätzlich enthalten ist das fachgerechte Verlegen von Dachpappe und Dachschindeln, KSK oder EPDM-Folie. Das Material ist nicht im Lieferumfang. Bestelle hierfür eines der vorgeschlagenen Dacheindeckungs-Sets bzw. das Wunschmaterial in der vorgegebenen Menge. Bitte achte auf die richtige Anzahl/Größe der Dachbahn/Folie und Dachabschluss-Profile bzw. -Blenden. Wir beraten dich gern zu den Möglichkeiten!

·         Ein persönlicher Ansprechpartner begleitet dein Projekt von Beauftragung bis zum Abschluss der Montage.

Wenn du weiteres Zubehör montieren willst, kannst du das als Zusatzmontage dazu buchen. Die findest du direkt bei deinem Wunschprodukt..

Option 3 – Exklusiv Montage – Haus und Dacheindeckung + alle optionalen Zusatzmontagen und Sonderwünsche

Wenn du das volle Programm ohne „Wenn“ und „Aber“ willst, ist diese Option genau das Richtige für dich.

In diesem Set sind enthalten:

·         Alle Leistungen der Montage Optionen 1+2

·         Die Zusatzmontage des passenden Dachrinnensets

·         Die Zusatzmontage des Fußbodens (wenn der Fußboden im Lieferumfang des Bausatzes enthalten ist, ist die Montage bereits in der Basic-Option inbegriffen)

·         Verlegung der Bodendämmung

·         Imprägnierung während des Aufbaus (nur notwendig, wenn das Produkt nicht bereits ab Werk mit einer Imprägnierung versehen wurde)

·         Längere Tragewege zum Aufbauort bis 40 m sind im Preis inklusive

·         Wir gehen auf deine individuellen Sonderwünsche ein und finden passende Lösungen

Bitte beachte, dass das zu verbauende Zubehör als optionales Zubehör bestellt werden muss. Wir bieten unseren Montageservice nur für Original-GartenHaus Zubehör an.

Weitere Hinweise:

Imprägnierung: Fachgerechtes (einmaliges) Auftragen von Imprägnierungsmittel (nach Aufbau) an der Außenseite des Produktes. Das Material ist nicht im Lieferumfang. Bestelle bitte hierfür PGH Holzschutzgrund Imprägnierung aus dem Zubehör in vorgeschlagener Menge oder das passende Farbenset.

Die Imprägnierung schafft – in Verbindung mit einer Holzendbehandlung in Form von Deckfarbe oder Lasur – die Basis für langanhaltenden Schutz vor holzabbauenden Pilzen, Bläuebefall, holzzerstörende Insekten/Schimmel. Damit ist der Grundstein für langjährige Freude an deinem Wunschprodukt gelegt! (Die Holzendbehandlung kann erst ca. 24 Stunden nach der Imprägnierung erfolgen und kann daher hier nicht mit angeboten werden.)

Wir weisen an dieser Stelle darauf hin, dass eine Imprägnierung ab Werk – bei vielen Modellen direkt als Variante zu wählen – einen stärkeren Schutz bietet als die Imprägnierung nach dem Aufbau. Bei der Werksimprägnierung wird das Imprägnierungsmittel in der Fertigung maschinell aufgetragen. Hierbei werden insbesondere auch Nut und Feder effektiv geschützt.

Die Imprägnierung des Hauses, ob durch unser Montageteam oder ab Werk, stellt eine Erstbehandlung dar. Für einen optimalen Schutz deines Hauses ist nach einer Trocknungszeit ein Zweitanstrich mit einer geeigneten Lasur - bzw. Deckfarbe nötig. Wir empfehlen dir hierfür unsere qualitätsgeprüften PGH-Farben und Lasuren aus unserem Zubehör-Sortiment.

Der GartenHaus Montageservice auf einen Blick: Deine Vorteile

✓ Fachgerechter Aufbau durch unsere Montage-Profis

✓ Ein fester Ansprechpartner für dein Projekt

✓ Bestpreisgarantie und Qualität vom Marktführer

Montageservice der GartenHaus GmbH: So funktioniert‘s:
Nach deiner Bestellung vereinbaren wir mit dir einen Termin, besprechen deinen Auftrag und klären alle deine Fragen.

Wir schicken dir rechtzeitig die Kontaktdaten deines Montagepartners aus deiner Region. Wenn du fachliche Fragen oder Wünsche hast, kannst du dich direkt an einen kompetenten Ansprechpartner wenden. Du stimmst die letzten Fragen mit dem Montage-Team ab und vereinbarst dann einen Termin.

Bitte beachte, dass die Aufbauteams zum Einplanen deines Montagetermins ausreichend Vorlaufszeit benötigen. Damit der Aufbau zeitnah nach der Lieferung erfolgen kann, empfiehlt es sich, die Buchung des Montageservices mit der Produktbestellung vorzunehmen. Eine spätere Nachbestellung des Montageservices ist nach individueller Absprache und erfolgter Prüfung gegebenenfalls möglich. Auch die Montage von Dachrinne, Fußbodendämmung, optionalem Fußboden, sowie die Imprägnierung sind optional in unserem Zubehör am Produkt hinzubuchbar.

Bitte hab Verständnis, dass aus Sicherheitsgründen nur die über die GartenHaus GmbH bezogenen Originalteile verbaut werden.

Für die Vorbereitung der Baustelle und für die Bestellung von Montageleistungen gibt es wichtige Infos. Diese findest du im Dokument und Link

 

Hinweis zur Buchung des richtigen Montageservices: Grundsätzlich sind am Produkt immer die richtigen Montageservice Artikel hinterlegt. Wenn du eine Montage nachträglich buchst, achte bitte bei der Auswahl auf folgende Merkmale:

·         Walmdach: Mit 4 und mehr Dachflächen (siehe Beispielbilder). Alle anderen Dächer werden als „Standarddach“ betrachtet

·         Fußboden: Viele unserer Produkte werden bereits ab Werk mit einem Fußboden ausgeliefert. Für diese Produkte ist das entsprechende Montageprodukt inkl. Fußboden zu wählen. Wenn der Fußboden nicht im Lieferumfang ist, kannst du ihn einfach als separates Zubehör dazu buchen. Für diese Fußböden ist die Zusatzmontage für Fußböden zu wählen.

·         Mehrraum: Für Gebäude mit mindestens einem, durch eine Wand getrennten Raum oder Schlafboden

·         Quadratmeteranzahl: Bezieht sich auf die Grundfläche + Dachüberhang des zu montierenden Produktes

·         Bauart:

Block bezeichnet Häuser, bei denen die Bohlen ineinandergreifend ausgeführt sind (siehe folgendes Bild)

Schraubsystem bezieht sich auf Produkte, die in Elementen oder einzelnen Bohlen ausgeführt sind und im Rahmen verschraubt werden müssen. (siehe folgendes Bild)

€ 0,00

Imprägnierung bis 25m²

Mehr Details anzeigen

Imprägnierung bis 25m²

Wenn du dich dafür entscheidest, dein Produkt von einem unserer Montageteams imprägnieren zu lassen, handelt es sich um das fachgerechte (einmalige) Auftragen von Imprägnierungsmittel (nach Aufbau) an der Außenseite des Produktes.

Achtung: Das Material ist nicht im Lieferumfang. Bestelle bitte hierfür PGH Holzschutzgrund Imprägnierung aus dem Zubehör in vorgeschlagener Menge oder das passende Farbenset.

Die Imprägnierung schafft – in Verbindung mit einer Holzendbehandlung in Form von Deckfarbe oder Lasur – die Basis für langanhaltenden Schutz vor holzabbauenden Pilzen, Bläuebefall, holzzerstörende Insekten/Schimmel. Damit ist der Grundstein für langjährige Freude an Ihrem Wunschprodukt gelegt. Die Holzendbehandlung kann erst ca. 24 Stunden nach der Imprägnierung erfolgen und kann daher hier nicht mit angeboten werden.

Wir weisen an dieser Stelle darauf hin, dass eine Imprägnierung ab Werk – bei vielen Modellen direkt als Variante zu wählen – einen stärkeren Schutz bietet als die Imprägnierung nach dem Aufbau. Bei der Werksimprägnierung wird das Imprägnierungsmittel in der Fertigung maschinell aufgetragen. Hierbei werden insbesondere auch Nut und Feder effektiv geschützt.

Die Imprägnierung des Hauses, ob durch unser Montageteam oder ab Werk, stellt eine Erstbehandlung dar. Für einen optimalen Schutz deines Hauses ist nach einer Trocknungszeit ein Zweitanstrich mit einer geeigneten Lasur - bzw. Deckfarbe nötig. Wir empfehlen dir hierfür unsere qualitätsgeprüften PGH-Farben und Lasuren aus unserem Zubehör-Sortiment.

Der GartenHaus Montageservice auf einen Blick: Deine Vorteile

✓ Fachgerechter Aufbau durch unsere Montage-Profis

✓ Ein fester Ansprechpartner für dein Projekt

✓ Bestpreisgarantie und Qualität vom Marktführer

Montageservice der GartenHaus GmbH: So funktioniert‘s:
Nach deiner Bestellung vereinbaren wir mit dir einen Termin, besprechen deinen Auftrag und klären alle deine Fragen.

Wir schicken dir rechtzeitig die Kontaktdaten deines Montagepartners aus deiner Region. Wenn du fachliche Fragen oder Wünsche hast, kannst du dich direkt an einen kompetenten Ansprechpartner wenden. Du stimmst die letzten Fragen mit dem Montage-Team ab und vereinbarst dann einen Termin.

Bitte beachte, dass die Aufbauteams zum Einplanen deines Montagetermins ausreichend Vorlaufszeit benötigen. Damit der Aufbau zeitnah nach der Lieferung erfolgen kann, empfiehlt es sich, die Buchung des Montageservices mit der Produktbestellung vorzunehmen. Eine spätere Nachbestellung des Montageservices ist nach individueller Absprache und erfolgter Prüfung gegebenenfalls möglich.

Bitte hab Verständnis, dass aus Sicherheitsgründen nur die über die GartenHaus GmbH bezogenen Originalteile verbaut werden.

Für die Vorbereitung der Baustelle und für die Bestellung von Montageleistungen gibt es wichtige Infos. Diese findest du im Dokument und Link

 

€ 359,00

Montage Dachrinne - 2 Dachseiten

Mehr Details anzeigen

Montage Dachrinne - 2 Dachseiten

Du hast dich zum Schutz und für die Langlebigkeit deines Produkts für ein passendes Dachentwässerungssystem entschieden.

Dann buch die professionelle Montage vom Fachmann gleich mit hinzu.. (Bei diesem Artikel handelt es sich um eine Zusatzmontage, die nur in Verbindung mit einem Montageauftrag für eines unserer Hauptprodukte gebucht werden kann)

Was ist in diesem Montageprodukt enthalten:

-          Fachgerechte Platzierung, Ausrichtung und Montage unserer Dachrinnen- bzw. Fallrohrsets

-          Montage der zusätzlich erhältlichen Rinneneinhänge (nur bei Dachrinnensets notwendig - optionales Zubehör)

Wählen die für dein Produkt passende Variante. Bei Dachrinnensets ist die Anzahl der zu entwässernden Dachseiten (1, 2 oder 4) ausschlaggebend, bei den Fallrohrsets die Anzahl der empfohlenen und bestellten Sets.

Achtung: Die Dachrinne bzw. das Fallrohr ist nicht enthalten. Bestelle hierzu eine der empfohlenen Dachrinnen bzw. Fallrohre aus unserem Zubehör. Wir empfehlen für unsere Dachrinnensets zusätzlich die Rinneneinhänge zu bestellen. Ein Rinneneinhang ist der fachgerechte Abschluss an der Dachtraufe. Er ist das Übergangsblech von der Dachfläche zur Dachrinne und sein Einsatz sorgt für kontrollierten Wassereinlauf in die Dachrinne. Die Montage der Rinneneinhänge ist im Montagepreis der Dachrinne enthalten.

Der GartenHaus Montageservice auf einen Blick: Deine Vorteile

✓ Fachgerechter Aufbau durch unsere Montage-Profis

✓ Ein fester Ansprechpartner für dein Projekt

✓ Bestpreisgarantie und Qualität vom Marktführer

Montageservice der GartenHaus GmbH: So funktioniert‘s:
Nach deiner Bestellung vereinbaren wir mit dir einen Termin, besprechen deinen Auftrag und klären alle deine Fragen.

Wir schicken dir rechtzeitig die Kontaktdaten deines Montagepartners aus deiner Region. Wenn du fachliche Fragen oder Wünsche hast, kannst du dich direkt an einen kompetenten Ansprechpartner wenden. Du stimmst die letzten Fragen mit dem Montage-Team ab und vereinbarst dann einen Termin.

Bitte beachte, dass die Aufbauteams zum Einplanen deines Montagetermins ausreichend Vorlaufszeit benötigen. Damit der Aufbau zeitnah nach der Lieferung erfolgen kann, empfiehlt es sich, die Buchung des Montageservices mit der Produktbestellung vorzunehmen. Eine spätere Nachbestellung des Montageservices ist nach individueller Absprache und erfolgter Prüfung gegebenenfalls möglich.

Bitte hab Verständnis, dass aus Sicherheitsgründen nur die über die GartenHaus GmbH bezogenen Originalteile verbaut werden.

Für die Vorbereitung der Baustelle und für die Bestellung von Montageleistungen gibt es wichtige Infos. Diese findest du im Dokument und Lin

€ 299,00

Montage Fußboden für 1 Set

Mehr Details anzeigen

Montage Fußboden für 1 Set

Gerade der Fußboden, die Basis deines Produktes, ist im Laufe der Zeit enormen Kräften und Belastungen ausgesetzt. Umso wichtiger ist die professionelle Montage vom Fachmann.
Überlass nichts dem Zufall und buch den Artikel einfach zur Hausmontage dazu. (Bei diesem Artikel handelt es sich um eine Zusatzmontage, die nur in Verbindung mit einem Montageauftrag für eines unserer Hauptprodukte gebucht werden kann)

Was ist in diesem Montageprodukt enthalten:

-          Aufbau und Zuschnitt des Fundamentrahmens

-          Montage der Fußbodenbretter und der Fußbodenleisten

Wählen die für dein Produkt passende Variante. Entscheidend ist hierfür die Anzahl der für dein Haus bestellten und notwendigen Fußbodensets (ein Set reicht für je 3m² Fußboden).


Achtung:Wenn der Fußboden schon im Lieferumfang des von dir bestellten Hauses enthalten ist, ist die Montage im Montagepreis für dein Haus mit drin. Bitte wähle diese Montage nur, wenn du den optionalen Fußboden dazu bestellst. Der Fußboden und das Montagematerial ist nicht in diesem Montageprodukt inkludiert und muss zusätzlich bestellt werden.

Der GartenHaus Montageservice auf einen Blick: Deine Vorteile

✓ Fachgerechter Aufbau durch unsere Montage-Profis

✓ Ein fester Ansprechpartner für dein Projekt

✓ Bestpreisgarantie und Qualität vom Marktführer

Montageservice der GartenHaus GmbH: So funktioniert‘s:
Nach deiner Bestellung vereinbaren wir mit dir einen Termin, besprechen deinen Auftrag und klären alle deine Fragen.

Wir schicken dir rechtzeitig die Kontaktdaten deines Montagepartners aus deiner Region. Wenn du fachliche Fragen oder Wünsche hast, kannst du dich direkt an einen kompetenten Ansprechpartner wenden. Du stimmst die letzten Fragen mit dem Montage-Team ab und vereinbarst dann einen Termin.

Bitte beachte, dass die Aufbauteams zum Einplanen deines Montagetermins ausreichend Vorlaufszeit benötigen. Damit der Aufbau zeitnah nach der Lieferung erfolgen kann, empfiehlt es sich, die Buchung des Montageservices mit der Produktbestellung vorzunehmen. Eine spätere Nachbestellung des Montageservices ist nach individueller Absprache und erfolgter Prüfung gegebenenfalls möglich.

Bitte hab Verständnis, dass aus Sicherheitsgründen nur die über die GartenHaus GmbH bezogenen Originalteile verbaut werden.

Für die Vorbereitung der Baustelle und für die Bestellung von Montageleistungen gibt es wichtige Infos. Diese findest du im Dokument und Link

€ 45,00

Baupläne & Dokumente
Gartenhaus Lausitz-40 ISO mit Schiebetür Verfügbare Downloads: Sicherheitshinweise-Gartenhaus-Alpholz.pdf
Bewertungen

Durchschnittliche Bewertung von 0 von 5 Sternen

(0)

Durchschnittliche Bewertung von 0 von 5 Sternen

(0 Bewertungen)
Produktdetails
Details:
Wandstärke mm
40
Dachform
Pultdach
Seitenverkehrte Montage
Nein
Fußboden
Optionales Zubehör
Grundfläche m²
21.84
Breite inkl. Dachüberhang cm
520
Tiefe inkl. Dachüberhang cm
420
Gesamthöhe cm
314
Raumanzahl
1

Beliebte Produkte